型钢悬挑脚手架在建筑工程中的设计与应用

温晓龙

陕西建工集团总公司 西安 710003

【摘要】结合具体工程的结构、装饰设计特点和现场施工需要,对建筑外悬挑脚手架的安装方案进行选择,给出了脚手架型钢布置、细部节点处理措施和施工要点,取得了较好的效果,可供类似工程提供参考。

【关键词】建筑施工 脚手架 悬挑 设计 安装

型钢悬挑脚手架具有投入低、周转快、搭设量小、节约工期等诸多优点,在工程中的应用较为频繁。根据《建筑施工扣件式钢管脚手架安全技术规范》(JGJ 130—2011)和《建筑施工安全检查标准》(JGJ 59—2011)中的相关构造,常用双排脚手架的立杆纵距在1.2~2.0 m之间;悬挑钢梁的固定段长度不应小于悬挑长度的1.25 倍。但有时受到工程设计或特殊部位的影响,能够满足施工的脚手架参数会突破上述尺寸限制,需根据实际情况进行设计计算,以满足施工需要并确保安全。

1 工程概况

某工程位于西安市南二环东段,是一幢地下2 层,地上9 层的办公楼。工程东西长156 m,南北宽28.2 m。建筑面积58 520 m2,屋面结构高42.90 m,地下室埋深11.40 m,1、2层层高为5.10 m,3~7层层高为4.20 m,8、9层层高为4.80 m。框架剪力墙结构,柱间距以8.4 m为主。

2 脚手架方案选择与设计[1,2]

2.1 脚手架方案选择

工程中常用的脚手架类型一般为落地式脚手架、悬挑式脚手架和附着式升降脚手架。因考虑建筑物高度较高而层数较少,本工程选择型钢悬挑脚手架。

该工程地下室部分为落地式脚手架,为加快钢管和扣件的周转,并为室外回填创造条件,上部主体结构施工用的型钢悬挑脚手架需要尽早搭设。但若从首层搭设,架体底部反而会因高度不足影响到回填施工,对楼内的人员物料进出和沉降观测工作也会带来不便,再加之施工现场极其狭小,后期装饰装修中需要大量的材料放置于楼内,综合考虑各方因素后,确定型钢悬挑脚手架从2层开始搭设。

考虑上部钢结构操作专用架后期的搭设位置,本架体分3 次悬挑,型钢分别置于2、5、8层,每挑架体高度分别为13.5 m、12.6 m和11.1 m。

2.2 脚手架方案设计

2.2.1 标准跨设计

工程建筑外围混凝土造型柱比较多,宽度有1.2 m和0.4 m两种,如图1(a)所示。混凝土墙柱采用大钢模板,型钢需离开构件0.3 m以上才不会影响模板的吊装作业,则要求型钢有较大的间距;架体要满足结构和装饰施工需要,则要求型钢要有较大的悬挑长度。经论证和综合考虑后,在标准跨(8.4 m)布置4 根长4.5 m的16#工字钢,固定段长2.5 m,悬挑段长度2 m,工字钢间距2.1 m。工字钢的平面布置如图1(b)所示。

2.2.2 出入口跨设计

在建筑东西山墙的中跨出入口上方因设计有较高的钢结构玻璃雨棚,2层混凝土梁板内收3 m,3层以上又恢复原位,增加的混凝土造型柱宽度为1.3 m。故根据混凝土结构设计情况,2层工字钢的平面布置如图2(a)所示,在此跨布置5 根长6 m的16#工字钢,在框架柱之间增加2 根20#槽钢作为工字钢的支撑点。5层、8层工字钢的平面布置如图2(b)所示,布置5 根长4.5 m的16#工字钢。

图1 标准跨方案设计

图2 山墙出入口跨方案设计

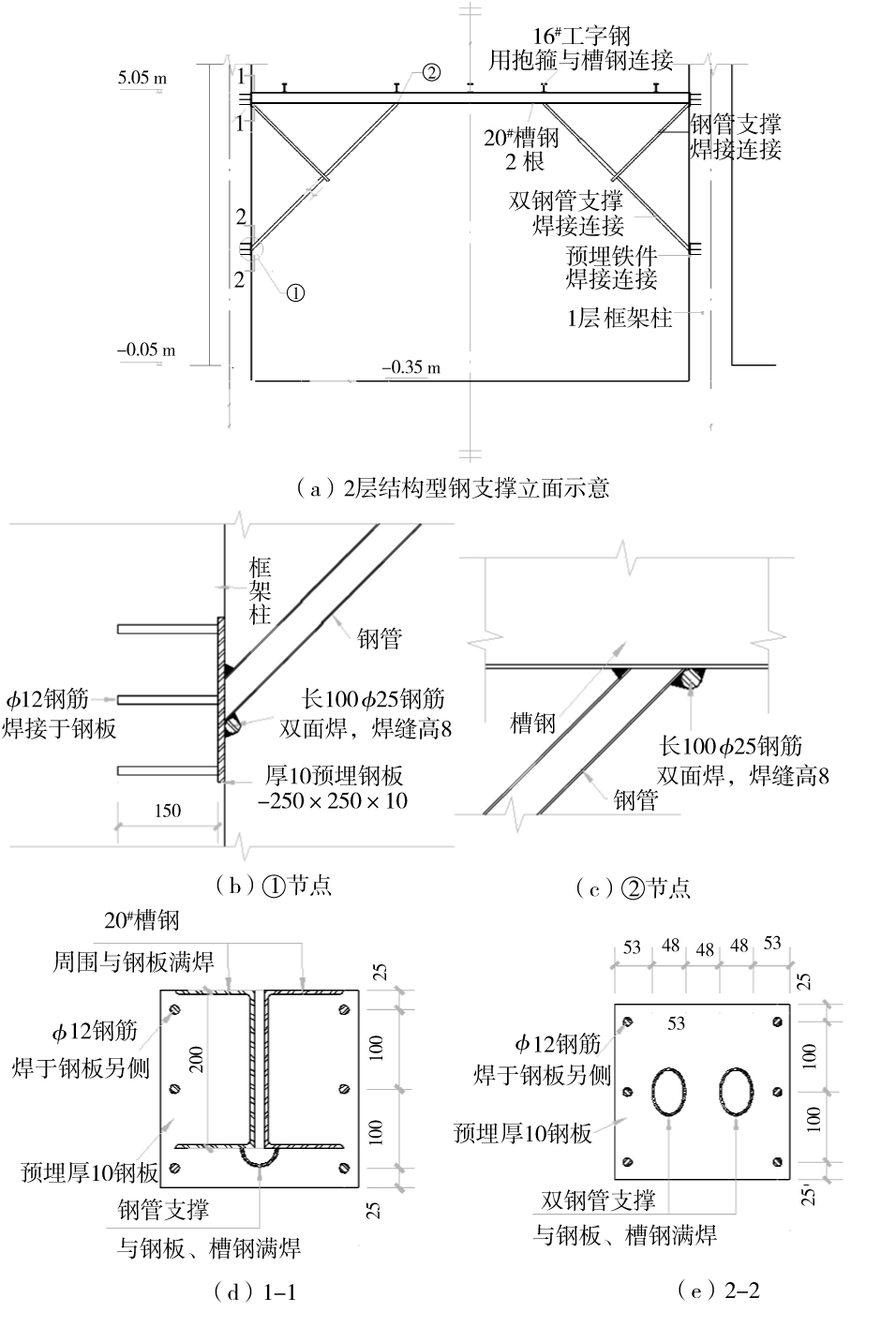
根据图2(a)设计情况,为提高20#槽钢的承载力,在其下方增设钢管斜支撑,如图3所示。

2.2.3 阳角设计

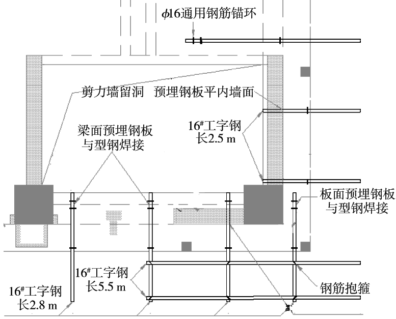
在建筑阳角部位因设计有楼梯和电梯间,为不影响疏散通行和电梯安装,其方案如图4所示进行设计。结构外宽700 mm的混凝土挑板厚200 mm,为后期填充墙、外墙石材的承力点,经设计计算,可以用作工字钢的锚固和支撑。在剪力墙施工时墙内预留150 mm×200 mm的洞口,洞下部的框架梁上预埋钢板,与工字钢尾部进行焊接。阳角部位内外立杆下均加设钢丝绳,并使钢丝绳参与受力计算。

型钢之间的钢筋抱箍设计如图5所示,委托场外加工制作。

2.2.4 脚手架参数设计

型钢悬挑脚手架立杆直接支承在工字钢梁上。在钢梁面焊接长50 mm、φ20 mm以上的钢筋头,立杆立于其外以防钢管滑移。脚手架立杆纵距为2.1 m,横距0.9 m,步距1.8 m,连墙件间距竖向同层高,水平向为4.2 m。里立杆距建筑结构外皮为1 m。构造如图6所示。

经计算,钢管的强度、稳定性、型钢和钢丝绳的承载力均满足要求。

图3 2层山墙出入口支撑设计

图4 阳角工字钢布置平面示意

图5 抱箍安装示意

3 施工要点[3-5]

3.1 钢筋拉环的埋设

图6 脚手架构造示意

钢筋拉环按架体工字钢布置平面图分别在2层、5层和8层所示位置埋设,在楼板上预埋3 根φ16 mm钢筋作钢梁固定。钢筋拉环必须与楼板底筋绑扎牢固,不得歪斜。施工中应特别注意个别厚度较大部位楼板处钢筋拉环的外露高度应控制好。

3.2 预埋铁件安装

柱侧铁件:在1层框架柱钢筋绑扎完后,将加工好的铁件绑扎固定于柱钢筋上,保证钢板面与柱混凝土面平齐。

梁面铁件:在2、5、8层阳角梁钢筋绑扎后,将加工好的铁件绑扎固定于相应位置梁面钢筋上,保证钢板面与梁混凝土面平齐。

3.3 槽钢安装

在2层结构边梁侧模拆除后,借助模板的满堂架利用塔吊将槽钢吊平放到位,两端与柱内埋设的铁件进行施焊。再将钢管斜撑按图31)进行焊接。

3.4 工字钢梁安装

根据钢梁平面布置位置在楼面安装工字钢梁,钢梁安装时,先将钢梁摆正、摆平稳,在临边端部的型钢下设垫板(边长100 mm,厚度18 mm)使悬挑端略微向上,然后按要求固定好。注意钢梁与钢筋拉环之间必须等结构梁板混凝土达到3 d强度以后方可用木楔进行三面(型钢的两侧及顶面)楔紧。

阳角部位应先预挑架体,待剪力墙模板拆除后才能安装工字钢。2.5 m和2.8 m工字钢按图4中埋设的钢筋拉环和剪力墙上的预留孔洞位置进行安装,并在长2.8 m工字钢上搁置长5.5 m工字钢,上下工字钢之间用钢筋抱箍连接固定,如图5。

3.5 钢丝绳张拉

钢丝绳选用6×19+1,公称抗拉强度1 700 MPa,φ14 mm。平直段每根型钢外立杆下各设1 条钢丝绳进行斜拉,阳角部位每根型钢下各设2 条钢丝绳进行斜拉。钢丝绳下端固定于型钢上每道立杆的底部,上端固定于上层结构梁板孔洞中。钢丝绳端头采用4 个配套绳夹压结。

3.6 连墙措施

脚手架连墙件应靠近主节点设置,偏离主节点的距离≤300 mm,应优先采用菱形布置,局部再采用矩形布置。连墙件中的锚固采用长400 mm短钢管于每层结构梁板中预埋(外露150 mm,埋入混凝土内250 mm)。避开后浇带、施工电梯、卸料平台、塔吊附墙等部位,并应满足每根连墙件的覆盖面积不超过40 m2。连墙件中的连墙杆应呈水平设置,当不能水平设置时,应向脚手架一端下斜连接。局部埋置连墙困难或效果不佳时可采用钢管抱柱方式进行加强,抱柱部位以不影响后期施工为宜。

3.7 剪刀撑

架体外侧从下到上满设剪刀撑,杆件接长采用搭接方式,搭接长度≥1 m,并应采用不少于2 个旋转扣件固定。

4 结语

1)本设计中立杆的纵距较大,但通过设计和施工过程控制,能够满足施工安全,节省钢管和型钢;阳角部位让钢丝绳参与架体受力计算,减少了楼内的锚固长度,不影响电梯安装和楼梯间通行,且节省型钢,经济效益可观。

2)型钢间距每跨相同,有利于钢筋拉环的埋设和检查,加快结构施工进度;山墙出入口的支撑设计舍弃了常规满堂架支撑方式,为后续工程的施工和材料进出带来了极大的便利,工期效果明显。

参考文献

[1] 霍亮亮,王涛.悬挑式脚手架在某高层建筑装饰施工中的应用[J].建筑与预算,2014(5):102-104.

[2] 谢世光.浅谈型钢悬挑脚手架工程施工中存在的问题与措施[J].科技与企业,2014(15):218.

[3] 井剑平.组合式型钢支承架在悬挑脚手架中的应用[J].建筑施工,2014(4):406-408.

[4] 马炳成.高层建筑型钢悬挑脚手架施工技术探讨[J].山东工业技术,2014(8):73,61.

[5] 肖庆丰.浅谈普通型钢悬挑脚手架施工要点[J].河南建材,2014(2):125-127.

Design and Application of Pro fi le Steel Cantilever Scaffold to Construction Engineering

Wen Xiaolong
Shanxi Construction Engineering Group Corporation Xi’an 710003

Abstract: Taking the speci fi c engineering structure, decorative design features and the need of the construction site into account, an installation solution of the cantilevered scaffold has been selected so as to provide with the steel scaffold layout, the detail nodes processing measures and the key points of the construction, which has achieved good effect and can provide reference for similar projects.

Keywords: building construction scaffold cantilever design installation

【中图分类号】TU755.2

【文献标识码】B

【DOI】10.14144/j.cnki.jzsg.2015.01.035

作者简介:温晓龙(1980—),男,本科,工程师。

通讯地址:陕西省西安市北大街199号(710003)。

收稿日期:2014-08-17