大跨度钢结构体系综合施工工艺

马志春

上海国际建设总承包有限公司 上海 200092

摘要某大空间钢框架结构具有结构跨度大、吨位大、工作面大等特点,通过大空间施工机械的选用、结构分段、复杂结构预拼、整体提升、对位校正等施工工艺,提高了施工进度,简化了施工流程,具有一定的创新性,为整体提升工艺提供了新思路。

关键词 大跨度钢结构 吊装技术 柱脚的定位和张拉 整体提升

1 工程概况

背景工程的南北两侧结构主要为由柱、梁组成的框架式结构,中间部位为数榀长度为54 m的桁架,作为主要受力构件。

本工程1层结构面以上至屋面基本为全钢结构,结构的南、北两侧为全钢的框架柱、梁的核心筒结构,作为整个结构的支承基础体系,在框架结构的纵向及横向设置相互交接的竖向支撑,以增强整个结构的四向刚度。结构的跨中为54 m的大跨度纵向桁架,根据结构的受力及使用要求,在相应部位设置楼面桁架、屋面桁架,局部形成双层桁架,纵向桁架支承于两侧的框架结构(图1)。

图1 工程效果图

本部分钢结构梁的主要形式为H型钢梁,钢梁有热轧和焊接2种,其中热轧钢梁有11种组成,规格为306 mm×164 mm×5 mm×7.4 mm~1 500 mm×500 mm×25 mm×50 mm;钢柱主要为箱形柱,截面尺寸有600 mm×600 mm、600 mm×900 mm以及900×900 mm三种,板厚30~80 mm,每根钢柱以同截面延伸至上部。

2 施工部署

2.1 施工区域的划分

本工程钢结构施工工作量大,工期紧迫,根据结构分区及前道工序施工流水,结合钢结构施工特点,将工程划分为2个区域同时进行施工:第1施工区域(西区)为7轴~25轴,第2施工区域(东区)为25轴~43轴(图2)。

图2 施工区域划分示意

2.2 各区域的总体流程

第1施工区域(西区):由7轴向25轴流水施工。施工过程中先安装桁架柱,再安装南北两侧的钢框架,最后安装桁架梁。

第2施工区域(东区):由25轴向43轴流水施工。施工过程中先安装桁架柱,再安装南北两侧的钢框架,然后安装桁架梁,最后安装38~43轴跨中钢框架及悬挑桁架。

3 主要施工技术

3.1 施工总体平面布置

本工程主体钢结构安装分2个施工区域同步流水施工。

东区和西区分别选用2台ZSL55145型(10 600 kN·m)行走式塔吊,布置于南北结构两侧,北侧塔吊中心距M轴9.85 m,南侧塔吊中心距A轴10.3 m;场内运输道路沿围墙布置,一圈贯通,外接大门1和大门3(图3)。

图3 钢结构吊装机械平面布置示意

同时根据现场安装机械开行路线,在其行走范围内布置行走道路,并进行相关处理,以满足吊机开行的地耐力要求。其中500 kN履带吊和500 kN汽车吊要求开行道路地耐力为80 kPa,1 500 kN履带吊和ZSL55145型行走式塔吊要求地耐力为120 kPa[1,2]

3.2 机械的选用

从7~43轴共长324 m,安装构件较多,桁架柱和框架柱单根吊装至安装位置,桁架梁散件吊装至现场拼装成整体后提升,质量较大,吊装半径又大,所以西区(7~25轴)与东区(25~43轴)分别选用2台ZSL55145型行走式塔吊,并分别布置在南北两侧的基坑外,使吊装区域可以覆盖整个施工区域。另布置1台KH700(1 500 kN)履带吊、2台QUY50A(500 kN)履带吊、2台500 kN汽车吊分别负责ZSL55145行走式塔吊的装拆、地下室劲性柱的安装,构件驳运以及地脚螺栓的安装。

3.3 主要构件分段

考虑到吊装设备的性能,桁架柱地上部分沿高度方向分为4段单根吊装,其中最大质量约23 t;框架柱地上部分沿高度方向分为4段,其中最大质量约9 t。

桁架梁按长度方向分成3段,按照从下至上的安装顺序在地面整榀拼装,由ZSL55145型吊机从跨外散件吊装,拼装完后桁架的最大质量160 t(图4)。

图4 主结构分段示意

3.4 主要构件施工工艺

3.4.1 地脚螺栓施工

本工程东、西区-6.40 m标高的预埋螺栓组件分别采用1台500 kN汽车吊跨外沿现有施工道路进行吊装,地下室螺栓吊装流程按土建开挖部位相继进行。为了保证预埋螺杆的精度,在安装过程中必须配套设置相应的格构柱、定位钢板,地脚螺栓到位后,定位钢板必须要与底板钢筋等相连固定,以防止浇筑混凝土时产生偏移。同时在螺杆上部螺段涂黄油、套PVC管,以防浇筑混凝土时损坏螺杆丝牙。

地下室地脚螺栓共计214件,基坑深浅不一,最大埋深达6 m,为了准确安装地脚螺栓组件,配套设置了1根格构柱,在格构柱四周设置75 mm×75 mm×6 mm的角钢斜撑,防止在混凝土浇筑过程中的移位,格构柱高度大于4 m的设置2道角钢斜撑。并要与大底板上下皮钢筋采用电焊进行可靠焊接,减少由于混凝土浇筑及振动产生的地脚螺栓的偏移。土建底板混凝土浇筑完毕后,再次针对每个地脚螺杆对应轴线的位置进行复核,对个别螺杆偏差大的,运用现场实际尺寸单独放样并报加工厂制作(图5)。

图5 地脚螺栓加固示意

3.4.2 预埋螺杆的预应力施工

1)预埋螺杆的预应力张拉顺序根据结构两端对称、隔根张拉原则,尽可能使同批张拉锚拉杆中应力相差不致过大,并考虑作业效率而确定。

2)本工程张拉施工操作顺序为:锚头清理→安装工具连接螺母→安装工具拉杆→安装工具撑脚→安装千斤顶→安装工具螺母→按程序张拉、测量→卸荷锚固。

3.4.3 地下劲性结构吊装方法

本工程地下室劲性钢柱共计214根,以25轴线为界,东区107根,西区107根,截面形式分别为箱型劲性柱及钢管柱。考虑地下室采用QUY50A(500 kN)履带吊下基坑吊装,单件吊装控制质量12 t,分段长度为7.3 m。

进行劲性柱吊装之前,土建已完成混凝土底板的浇筑。QUY50A履带吊由西区南侧15轴处放坡开入基坑面,从西往东依次吊装地下室钢柱。

3.4.4 钢柱吊装方法

桁架柱控制吊重为190 kN,分段最大高度为10.95 m,结构最大标高42 m。桁架柱全部采用ZSL55145型行走式塔吊进行分段安装,ZSL55145型吊机的塔身高度为42 m,吊装区域南北两侧ZSL55145型行走式塔吊完全覆盖整个西区,最大单件构件质量19 t,可满足施工需要。钢柱吊装采用二点就位、双点吊装,吊点位置在柱顶。

桁架柱按分段单根吊装,待同一分段的2段构件吊装到位后,焊接补缺,使其形成一节桁架柱,再沿纵轴方向每侧至少拉设2根缆风绳保证其侧向稳定。

3.4.5 现场钢架拼装方法

1)主要施工方案:桁架的分段主要是由运输及吊装质量所决定,目前主要是以杆件形式进行分段,最长约为20 m,质量约15 t。整个桁架大体分为上弦3段、下弦3段及上下弦之间斜腹杆若干。由于桁架采取整体提升的方法进行安装,故钢结构散件需要在现场组拼成整体。根据现场情况,我们选择原位立拼然后整体提升的方法。整个桁架采用立拼法的优点在于避免桁架整体起扳,缺点在于拼装时组装精度较难控制(主要是平面的控制及拼装几何尺寸)。

2)拼装场地:拼装主要在1层楼面进行,而1层楼面有承载力的限制(5 kN/m2),因此需要在拼装时将桁架直接支承在立柱顶端上。由于采用原位拼装,因此在对应提升轴线下均需划拨相应的拼装场地。

3)桁架立拼:利用跨外大型塔吊将下弦梁依次吊装到位,采用钢板调整到位后焊接成整体,之后将立杆、斜腹杆安装到下弦杆上并焊接固定,最后将上弦杆安装到位。杆件连接依靠定位板和螺栓,校正完成后再整体焊接。校正桁架的胎架共可使用11点,其中5个搁置点不能移动,其余均可根据需要进行临时调整(图6)。

3.4.6 钢桁架加固方法

本工程桁架跨度大,片状式桁架高度大而宽度窄,结构形式限制了片状式大跨度桁架整体拼装后同步提升的条件。为了解决在单榀桁架提升过程中,桁架的上弦由于轴心受压而产生的平面外失稳,在片状式大跨度钢架的顶面设置装拆式水平桁架,增加上弦宽度,以此增大桁架侧向惯性矩,解决了单榀桁架提升平面外失稳的难题(图7)。

图6 胎架剖面示意

图7 钢桁架顶面加固

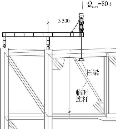
3.5 钢架提升方法

用塔吊将提升架安装到柱顶相应位置,安装完成后进行调试。在待安装桁架上安装连接临时连杆,使桁架端部形成整体。提升点位于桁架上弦的下缘,深化设计时需要进行局部加强设计(包括临时连接拉杆的设计)。托梁安装完成后,即可进行提升。要求在提升时同一侧2个提升点的高差控制在10 mm之内,两侧提升高差在50 mm之内。由于本次提升不设嵌补段,采用斜断面的形式,杆件上下自身斜50 mm。桁架成梯形切断,杆件按高度从下至上两端依次缩进50 mm。为保证桁架在提升过程中顺利通过每层的安装节点区域,要求桁架在工厂加工时进行预拼装,加工厂应统一公差值,确保现场安装尺寸更好地控制及实施。

虽然提升过程中间隙相对较大,但在过2层桁架时,仍需要人员作好监护工作。提升过程中油管串通,保持千斤顶受力均匀,并做好同步工作。当接近安装位置时,4个提升点需要进行微调作连接对位,因此各提升点的液压提升器最好能切断油路,以便分别动作。对位完成后进行斜断面的焊接,焊接完成并检验后,松掉千斤顶,进行下榀桁架提升[3,4](图8)。

图8 提升到位工况示意

4 结语

本工程作为世博会重要的会议、宣传中心等综合性场馆,是世博会园区的核心建筑之一,是国内外知名工程。其独特的造型及新产品、新工艺的集中运用,体现了设计者新颖的设计理念,展示了上海建筑工程界钢结构施工的先进技术和雄厚实力、扩大了在上海乃至全世界建筑行业的影响,对提升企业施工品牌具有十分可观的社会价值。

参考文献

[1] 王景文.钢结构施工便携手册[M].北京:中国计划出版社,2006.

[2] 张文学,卞友明.国家图书馆钢结构万吨整体提升施工技术[J].建筑施工技术,2010(8):113-116,130.

[3] 江正荣.建筑施工计算手册[M].北京:中国建筑工业出版社,2001.

[4] 鲍广鉴,李国荣.现代大跨度空间结构施工技术[J].钢结构,2005(1):43-48.

Comprehensive Construction Technology for Long-Span Steel Structure System

MA Zhichun
Shanghai International Building General Contract Co., Ltd. Shanghai 200092

中图分类号TU758.11                          

文献标志码:B                                  

DOI:10.14144/j.cnki.jzsg.2015.06.013

作者简介:马志春(1961—),男,本科,工程师。

通信地址:上海市杨浦区控江路1688号11楼(200092)。

收稿日期:2015-04-16