钢管混凝土叠合柱混凝土浇筑施工技术

 唐建华      高   洋      邵天佐      庞程程

中建八局总承包公司 上海 200135

摘要某工程设计采用钢管混凝土叠合柱结构,在钢管柱内环向加劲肋板众多、柱外栓钉密布、配筋密集的情况下,通过对钢管内混凝土采用泵送及导管法两层一次浇筑、加长振捣棒振捣、钢管外混凝土随同楼层结构逐层支模浇筑的方式,保证了叠合柱混凝土的浇筑质量,为今后同类工程的施工积累了经验。

关键词钢管混凝土 叠合柱 导管法浇筑 施工技术

1 工程概况

背景工程位于杭州萧山区,总建设面积8.5×105 m2由地上3幢上盖物业塔楼、3层裙房及2层地下室组成(图1)。地下2层,层高分别为6.0 m、5.0 m,设计采用钢管混凝土叠合柱共500根,钢管柱最大直径2.6 m,最小直径1.2 m。叠合柱钢管内混凝土强度等级为C60,钢管外混凝土强度等级为C40,设计采用钢管混凝土叠合柱,采用不同期施工方法。本工程地下室层高大,地下2层钢管柱分成1节安装,混凝土浇筑高度达12.0 m,钢管内环向加劲肋板多,混凝土浇筑不易密实。

图1 项目效果图

2 混凝土浇筑施工技术

为满足建筑物的刚度、强度与抗震性,高层建筑和大型会展建筑中越来越多地采用钢管混凝土叠合柱。因为它既可减少柱子断面而节约空间,也能满足建筑物的刚度、强度与抗震性,减少钢管防腐的成本,增强钢管的防火性能。钢管混凝土叠合柱是在钢筋混凝土柱的中部设置钢管混凝土的一种叠合构件,它比一般的钢筋混凝土柱和型钢混凝土柱具有更优良的抗震抗、压性能。为此,保证钢管混凝土叠合柱柱内的混凝土密实性以及避免混凝土高抛产生离析现象是浇筑的难点,我们通过混凝土原材料选择、浇筑方法的优化、控制混凝土下落高度以及采用二次浇筑法,从而保证钢管混凝土叠合柱柱内的混凝土的密实性。

2.1 技术难点

1)钢管内沿高度方向每400 mm布设1道水平加劲板,在混凝土浇筑施工过程中,混凝土的密实性是施工过程控制的难点[1,2]

2)钢管混凝土叠合柱与梁交接部位,梁主筋与叠合柱牛腿板焊接,施工中叠合柱的安装定位及钢筋间距是控制的重点(图2、图3)。

图2 方钢管柱与混凝土梁连接节点

图3 混凝土梁主筋与钢管柱牛腿板 焊接节点

2.2 钢管混凝土叠合柱的施工工艺

2.2.1 施工工艺流程

钢管柱安装完毕→支设柱脚模板→下料漏斗安放→柱底浇筑厚500 mm混凝土→浇筑钢管内上部混凝土→钢管外钢筋绑扎→模板安装→浇筑钢管外混凝土[3-5]

2.2.2 施工方法

1)钢管内柱脚混凝土浇筑:首先安装柱脚模板,并用木方顶固在外侧的螺纹钢筋上,封堵因安装钢柱螺栓预留的安装口,由于钢柱大于6 m,为避免混凝土浇筑时产生离析和污染钢管内壁及使新旧混凝土得到良好的连接,同时也为避免发生混凝土弹跳现象,钢管内的混凝土采用泵送漏斗下料浇筑法。开始浇筑柱脚厚500 mm的无收缩细石混凝土,用下料漏斗进行下料,用长10 m的振捣棒进行振捣并用木锤对钢管壁进行敲击,待模板与钢柱的缝隙中挤出混凝土浆体后,判定混凝土已达密实。

2)钢管内柱脚上部混凝土浇筑:在柱脚混凝土初凝前浇筑钢管内上部混凝土。由于钢管内的混凝土具有高强度、高弹性模量、低收缩、低徐变、早强、良好的可泵性等特点,因此采用泵送下料漏斗下料浇筑法,通过泵送混凝土进入下料漏斗再流入钢管内,待混凝土浇筑约2 m的高度,用塔吊适当提高下料漏斗,并插入振捣棒振捣,振捣棒采用快插慢拔,略微转动,插点均匀,逐点移动,顺序进行,每次振捣20~30 s,防止漏振。并用木锤对钢管壁四周进行敲击。为减小上部钢柱焊接时对混凝土质量的影响,混凝土浇筑至距钢管口500 mm处,并在混凝土表面植入大粒径的干净石子,大头向上,露出约1/3,增强施工缝上下层新旧混凝土的黏结,混凝土终凝后进行蓄水养护,并用塑料布封住上口,防止施工垃圾进入钢管内部。

3)钢管外部的施工:钢管外的纵向受力钢筋采用直螺纹套筒连接,待钢筋绑扎完毕后,进行模板安装,钢柱外的模板安装与普通柱安装基本相同,由于柱内有型钢,不得随意采用对拉螺杆的办法在型钢上开孔对模板进行加固,因此采用钢管柱上焊钢筋连接器的方案。具体做法是:在钢管柱吊装完毕后、模板安装前,在钢柱上焊接φ20 mm的对拉螺杆,要求与型钢满焊,按对拉螺栓的纵横向间距进行布置。模板采用厚18 mm胶合板,次楞采用50 mm×100 mm木方,主楞采用φ48 mm×3.5 mm钢管。本工程叠合柱混凝土截面最大尺寸为2 600 mm×2 600 mm,采用φ48 mm×3.5 mm双钢管配φ14 mm对拉螺杆,竖向间距600 mm,水平间距550 mm,作为柱箍进行加固骨架。

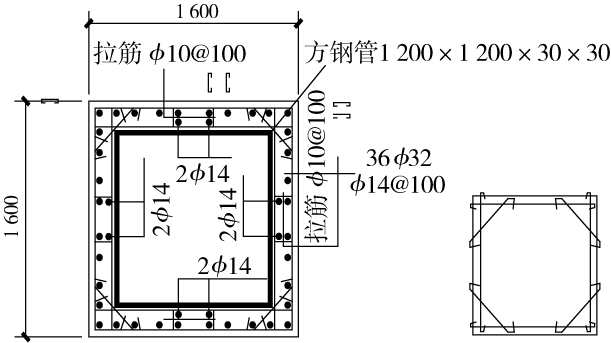
钢管外的混凝土仅厚200 mm,且钢管外铆钉密集,下料漏斗无法深入内部,因此采用模板上留下料口进行下料。待混凝土浇筑至孔高度时封堵孔。振捣时振捣棒采用快插慢拔,顺序进行,防止漏振,在振捣时防止振捣棒与铆钉发生碰撞(图4、图5)。

3 钢管混凝土柱的质量保证

图4 叠合柱配筋示意

图5 叠合柱外模板加固示意

通过对混凝土配合比的控制以及加强钢管内混凝土的振捣,并配合木锤对钢管柱四周外壁进行敲击,保证了钢管内部混凝土的密实性,从而大大提高了混凝土的强度和钢管混凝土的刚度及稳定性。通过这种施工方法后,对钢管混凝土叠合柱进行敲击法检查及超声波检测,钢管内混凝土的密实性都达到了设计要求[6,7]

4 结语

钢管柱环梁梁柱节点四边形加腋做法在本工程施工实施中效果良好,不仅节约了造价,使施工难度大大降低,而且施工速度快、施工质量好,并形成了一整套施工工艺,得到了专家、业主、设计、监理以及业内同行的一致好评。

参考文献

[1] 黄斌.钢管混凝土柱与钢筋混凝土梁连接节点设计[J].广东土木与建筑,2007(2):29-30.

[2] 林立岩,李庆钢.钢管混凝土叠合柱的设计概念与技术经济性分析[J].建筑结构,2008(3):17-21.

[3] 钱稼茹,康洪震.钢管高强混凝土组合柱抗震性能试验研究[J].建筑结构学报,2009(4):85-93.

[4] 王旭峰,杨程.钢管混凝土叠合柱结构施工技术[J].建筑技术,2011(8):733-736.

[5] 徐爱民,范伟霞,蒲兴斌.钢管混凝土结构特性及关键技术分析[J].工程建设,2008(4):13-16.

[6] 汪兴敏,栾经正.钢管混凝土结构的发展和展望[J].工业建筑,2007(z1):501-503.

[7] 魏显斌.浅谈钢管混凝土拱桥设计[J].江西建材,2015(4):20.

Construction Technology of Concrete Pouring for Steel Tube Reinforced Concrete Column

TANG Jianhua GAO Yang SHAO Tianzuo PANG Chengcheng
General Contractor of China Construction Eighth Engineering Division Co., Ltd. Shanghai 200135

中图分类号TU755                            

文献标识码:B                      

DOI:10.14144/j.cnki.jzsg.2015.06.015

作者简介:唐建华(1962— ),男,本科,高级工程师。

通信地址:上海市浦东新区源深路269号(200135)。

收稿日期:2014-12-12