PC外墙施工技术在装配式住宅中的应用

 昝   帅      姜福华      张慧杰

深圳市建工集团股份有限公司 深圳 518048

摘要以某装配式住宅建筑为例,介绍了项目中预埋件安装、预制外墙板安装以及墙板接缝处理等施工,通过对建筑工业化生产的PC外墙板材的施工工艺进行总结,为装配式建筑施工积累了经验,可供类似项目参考。

关键词装配式住宅建筑 PC外墙板 墙板接缝 预埋件安装

某住宅项目采用装配式建筑方案,由于住宅工业化施工技术在国内尚处于起步阶段,尚无更多经验借鉴。PC预制件安装及PC外墙与现浇结构柱、梁连接处的加固方案是装配式建筑中需要重点研究的内容。

1 起吊工具的制作、配备

PC板结构预留吊点采用拉环和预留M20套筒2种起吊模式,根据PC板预留M20套筒的特点,采用合理的起吊模式,加工相应的起吊工具。配备长3 m的钢丝绳(6×37)2条,长2 m的钢丝绳(6×37)4条、卡环4个。经纬仪、水准仪、电焊机、50 kN千斤顶、100 kN千斤顶、水平尺、吊线锤各1套。用200 mm×200 mm×16 mm角钢焊接成起吊拉环,焊缝饱满,符合规范要求;用钢板加工70 mm×70 mm×16 mm起吊垫片;M20螺栓起吊时用于连接角钢吊具,车丝长度符合设计要求,进套筒最小连接长度为30 mm,强度符合规范要求;采用12#工字钢加工为吊装平衡梁[1-3]

2 主要施工方法

2.1 预埋件定位、安装

工程PC板紧固件分为B、C类,B组紧固件为水平方向活动定位,通过扭转水平方向的螺栓,控制PC板内外进出,调整板面垂直度。C组预埋件为垂直方向活动定位,通过扭转垂直方向的螺栓,控制PC板上下移动,调整PC板标高(图1)。安装时先固定C组紧固件在PC板上的位置,由C组紧固确定好标高位置,再固定B组紧固件在PC板上的位置,由B组紧固确定好水平活动位置,控制好板面垂直度。混凝土浇筑完毕达到初凝时间7 d后,卸下PC板上B、C组紧固件,在原B组预埋件位置更换为与B组紧固件相同的钢板,与PC板和结构预埋件焊接连接。

图1 B组、C组预埋件

根据工程的特点,预埋件安装先在标准层混凝土上弹设控制线,由控制线来定位预埋件,板上套筒M20待板上钢筋绑扎完毕后,采用砂浆包裹,套筒孔上下塞紧海绵并用胶纸缠绕,避免混凝土浇筑时水泥浆进入套筒孔影响螺栓的连接,板上套筒主要作用为PC板的斜拉预埋件与结构楼板间的连接,安装斜拉支撑(板面斜拉支撑),为避免斜拉支撑被满堂架钢管干扰,尤其是避免扫地杆妨碍斜拉杆对PC板的连接,需要把扫地杆直接放置在地面上。

2.2 PC板安装

PC板采用平板车运送至工地指定位置,PC板上留有预留套筒。每次吊装先将吊具安装在PC板吊顶预留套筒位置,吊具采用螺栓连接,中间垫上木方和塑料垫块,避免吊装过程损坏构件。采用平吊方式使PC板水平离开平板车,吊至一定高度再降低脚跟吊具绳索,待PC板依据重心位置直立后,拆除脚跟部位吊具。利用钢扁担,依靠顶端吊具4个螺栓受力进行安装。

PC板起吊时必须在构件的混凝土达到设计强度才能进行,PC板在吊环上的绳索要求等长,起吊点要求对称设置,使PC板起吊后保持水平,受力均匀,就位时缓慢落钩,争取一次性对好纵轴线,纵轴线上板与下板之间垫厚25 mm钢板垫块,避免纵轴线上撬动损坏PC板边角。

当PC板构件安装就位后,将构件与混凝土结构通过斜支撑、B组、C组埋件安装在PC板上,用扳手拧紧C组埋件并根据测量放线的轴线、标高、垫片控制尺寸进行临时固定,在吊车的配合下调整PC构件的平面位置、标高和垂直度。

2.3 PC板校正

PC在吊装过程中进行第1次调校,吊装完成后再次拉通线进行精调校正。每块PC板校正合格后均由质检人员签字确认,确保PC板外墙轴线位置、垂直度、标高以及相邻PC板接缝平整度符合设计与规范要求,如图2~图4所示。

图2 吊锤控制 PC件垂直度

图3 斜撑紧固件调垂直度、水平度

图4 调校PC板底内外位置

当PC板构件质量较大时,PC板安装固定以后难以再做调整,在吊装过程中边吊装边校正。吊车充分配合,在吊装就位的同时,需调整PC板的轴线位置、垂直度、平整度,使其符合设计与规范要求。对于标高和垂直度没有完全确定的情况下,吊装完成后采用人工拉通线进行校正。2.4 PC板拉结螺栓加固模板

混凝土浇筑以前,PC板构件柱边缘线上M12预留套筒,采用车丝机将φ12 mm钢筋加工成端头长100 mm的套丝,将加工好的钢筋直接扭入M12预留套筒内。工地现场用φ14 mm高强螺杆焊接长100 mm的M12螺栓,高强螺杆出PC板钢筋以外用于模板加固。

由于PC板构件柱边缘线仅留有一排M12预留套筒,单排拉结螺栓无法加固较大的边缘柱子,浇筑混凝土期间模板容易发生扭转,引起胀模和跑线问题。采用冲击钻在PC板构件上打孔,PC板构件边缘位置安装M12#膨胀螺栓,在M12膨胀螺栓上焊接φ14 mm高强螺杆,对柱子模板形成双排加固(图5)。

图5 增加膨胀螺栓,焊接高强螺杆,形成双排加固

3 主要施工节点

3.1 PC板板面概述

在PC预制墙板与梁、柱交接位置中预留埋带丝口的套筒,然后PC墙板进场吊运至相应位置后,通过螺杆对拉PC外墙与木模板对外框梁、柱进行加固,预埋在PC外墙里的带丝套筒要满足对拉后混凝土浇筑时的受力要求。

外框梁、柱木模板支设时,在木模板相应位置钻出螺杆眼,将螺杆通过螺杆眼拧入PC外墙预留套筒中,然后通过木方及钢管背楞对与PC外墙相接处的现浇结构外框梁、柱进行有效加固[4,5]

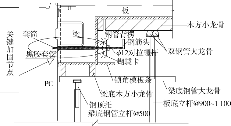
3.2 PC外墙与外框梁加固

梁底模板安装完毕后,进行梁钢筋绑扎,待钢筋绑扎完毕,进行PC墙板吊装。PC墙板吊装结束后,再行加固梁侧模。梁一侧利用PC构件作为模板,另一侧采用木模。PC构件上预埋有φ12 mm套筒,利用φ12 mm螺杆加横钢管背楞对梁侧模进行加固。

1)梁底模与PC墙板拼接处,需预先在PC墙体上粘贴泡沫双面胶,待构件与梁底模加固时将拼缝挤密,防止混凝土浇筑过程中漏浆。

2)加固时螺杆外侧需套长325 mm黑胶套管以对螺杆进行保护,胶管两端应垫泡沫胶以防止混凝土进入胶管内。穿入螺杆前首先清除PC墙板套筒内的水泥浆。

3)螺杆尾端焊制垂直于螺杆的钢筋头,钢筋头长100 mm,用于将螺杆拧入PC墙体套筒中。

4)螺杆固定前,首先将螺帽及蝴蝶卡穿入其上,然后再穿入模板与套筒连接。

5)PC墙板交接处缝隙处理办法:墙板与墙板之间缝隙采用粘贴XPS进行封堵,以防止混凝土漏浆。梁模支撑加固大样如图6、图7所示。

图6 无洞口边框梁

图7 有洞口边框梁

3.3 PC构件与外框边缘柱

支模前,按照放线位置钉好压脚板,然后进行模板安装,边安装边插入对拉螺栓。与PC墙板对拉的螺栓,其一端需拧入PC墙板预留套筒中。

边缘柱及剪力墙采用50 mm×100 mm木方作为竖向背楞,间距250 mm;φ48 mm×3.6 mm钢管作为横楞,间距450 mm。根据模板规范要求在外墙内侧加斜撑,且边安装边校正其平整度及垂直度。模板安装完毕应检查螺栓、斜撑的加固情况以及模板拼缝。柱侧模与PC墙板拼接处,需事先在PC墙体上粘贴泡沫双面胶,待构件与柱侧模加固时将拼缝挤密,用以防止混凝土浇筑过程中的漏浆现象(图8)。

图8 柱模加固

3.4 预制墙板接缝处理

预制墙板接缝主要是指墙板之间的水平缝和垂直缝,接缝均采用柔性材料和微膨胀水泥砂浆进行填塞。PC外墙防渗体系包括结构自防水、构造防水、材料防水3部分。

水平缝采用构造防水,即墙板的上部和底部均预制企口,防止水流到室内;外墙接缝均采用材料防水,原料为改良硅酮胶(图9、图10)。

图9 外墙水平缝反槛构造防水

图10 板侧粘贴胶条

4 结语

PC结构住宅是今后住宅产业化发展的主要结构形式之一,而目前对于该体系的研究日趋完善,工程实践走在时代前列。高层建筑预制外墙与现浇剪力墙的共同受力及抗震性能分析已能满足要求。由于面砖预先贴于PC墙板上,外墙装饰作业大大减少,取消了外墙抹灰。阳台板、空调板、楼梯等异形预制构件的体系也成功运用到工程实践。

参考文献

[1] 张传生,张凯.工业化预制装配式住宅建设研究与应用[J].住宅产业,2012(6):24-28.

[2] 张苏苹.预制式工业化住宅应用实例[J].山西建筑,2012(2):3.

[3] 栗新.工业化预制装配式PC住宅建筑的设计研究与应用[J].建筑施工,2008(3):201-208.

[4] 李莹.预制装配式混凝土外墙施工技术[J].混凝土与水泥制品,2015(1):78-81.

[5] 马琳皓.预制装配式混凝土外墙施工技术[J].四川建筑科学研究,2014(5):330-332.

Construction Technology for PC External Wall Applied to Fabricated Residence

ZAN Shuai JIANG Fuhua ZHANG Huijie
Shenzhen Construction Engineering Group Co., Ltd. Shenzhen 518048

Abstract: Taking one fabricated residence project as an example, this paper introduces several constructional operations such as the embedded part setup, the prefabricated external wall panel installation and the wallboard joint treatment.By summarizing the construction technology for PC external wall panel produced for the building industrialization, such construction technology has accumulated the experience for fabricated building construction, which can provide reference for similar projects.

Keywords: fabricated residence PC external wall panel wallboard joint embedded part setup

中图分类号TU755                          

文献标识码:B                       

DOI:10.14144/j.cnki.jzsg.2015.06.017

作者简介:昝   帅(1979—),男,本科,工程师。

通信地址:深圳市福田区新沙路国都高尔夫花园二期3楼(518048)。

收稿日期:2014-12-31