地下室大面积密肋反梁顶板施工技术

许 冶 李书信

杭州市建设工程质量安全监督总站 杭州 310007

摘要在城市建设中,为了合理使用土地,往往多采用整体地下室形式,地下室上部为主楼,主楼之间采用种植顶板。地下室种植顶板的施工质量直接关系到建筑物的使用功能和种植物的生长。以上海东方万国企业中心工程大面积密肋反梁地下室种植顶板施工为例,从方案选定、材料选择、施工要点等几个方面进行施工质量的控制,取得了良好的施工效果。

关键词 地下室 密肋反梁 种植顶板 卵石滤水层

1 工程概况

东方万国企业中心位于上海市浦东新区新金桥路,项目建设用地约95 000 m2,周围为2层地下室,中间为下沉式广场。2层地下室顶板除主楼及铺装道路外,均为种植顶板,种植顶板平面面积约为20 000 m2。为了有效利用地下室空间,在结构设计时,将种植顶板区域设计为结构反梁,这样既能保证地下1层的净高,同时用覆土掩盖结构反梁,也能保证景观效果[1-3]。地下室顶板厚200 mm,反梁网格普遍间距为4.3 m×4.1 m,反梁大小普遍为0.4 m×0.8 m、0.7 m×0.9 m。本工程地下室防水设防Ⅰ级。

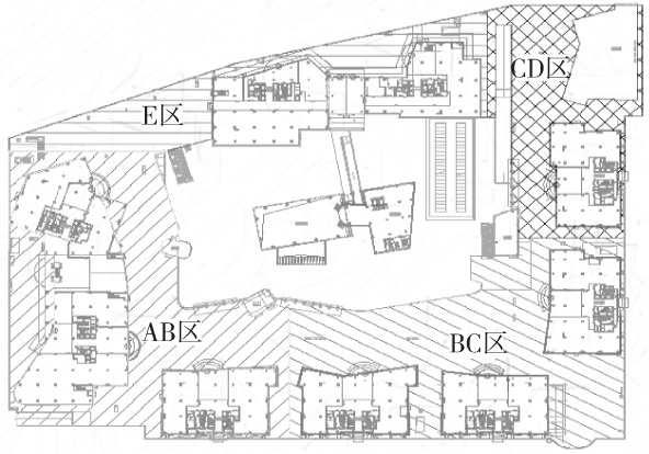
根据施工组织设计及总体部署,将地下室顶板防水施工共分成4个区段进行平行施工。具体分区为AB区、BC区、CD区、E区(图1)。

图1 地下室种植顶板施工分布及分区施工示意

2 方案选定

本工程种植顶板面积较大,为反梁结构,施工难度大,必须从设计方案选定、材料选择、施工等多方面综合研究考虑,既要保证地下室顶板景观植物培育生长,同时需要保证顶板排水顺畅不渗漏,以满足建筑物的使用功能[4-6]

根据项目实际情况,最终需要突出解决2个重点问题:种植顶板防水问题以及大面积反梁排水问题。通过多方考虑,最终选定方案如下:

1)地下室顶板结构施工完成后,采用陶粒混凝土找坡,陶粒混凝土采用原浆抹光,表面无起砂、浮尘,防水层直接粘贴在结构面上,减少水泥砂浆找平层,从而节约成本,减轻地下室种植屋面的自重。

2)根据地下室设计防水设防等级,采用3道防水设防,其中最上1道为耐根穿刺防水卷材。

3)种植土下部设置排水板及土工织物,根据地下室顶板反梁形成的方格,每8~16个方格布置1个落水斗,各方格之间的反梁预留水平排水管。种植顶板排水采用2道措施,一部分雨水通过地下室顶板表面排走,另一部分渗透进土壤的雨水通过种植土下部的排水板排至落水斗,从地下室排出。

4)为了保证反梁之间水平排水管排水顺畅,在排水管周围1 m范围内设置卵石滤水层(图2)。

3 材料选择

3.1 耐根穿刺防水卷材的选择

图2 种植顶板做法示意

本工程地下室种植区顶板为反梁结构,反梁纵横交错,间距较密且阴阳角较多,并在梁内设计多处排水孔,顶板上设计多处落水斗。根据这一特点,铜箔胎弹性体改性沥青耐根穿刺防水卷材质地较硬,如选择此类卷材,阴阳角、排水孔、落水斗处施工难度较大,给地下室顶板防水带来质量隐患。

改性沥青卷材是目前已成熟应用的耐穿刺防水材料,该卷材在沥青中加入了无毒无害的化学阻根剂,当植物的根茎在生长过程中遇到阻根剂时,可抑制根系刺破防水层,从而保证卷材的防水效果。

3.2 其余2层防水卷材的选择

底层防水卷材考虑同基层的黏结和阴阳角多的特点,结合工程造价,选用防水效果好、材性柔软、造价经济的聚乙烯丙纶防水卷材。聚乙烯丙纶防水卷材对基层要求不是太高,用水泥黏结材料直接黏结施工,施工方便,质量可靠[7-9]

由于上层防水采用改性沥青耐根穿刺防水卷材,此卷材需采用热熔法施工,故中间层防水卷材需满足可以采用热熔法的卷材,同时与基层聚乙烯丙纶可以采用黏结法施工的材料。通过以上综合考虑,选用自黏型改性沥青防水卷材。

4 施工方法

4.1 基层处理

种植顶板施工前,突出顶板的管道、风井等结构已施工完成,需对基层进行处理,清理杂物、松动混凝土及砂浆等,将基层上的灰尘清理干净。基层处理后做蓄水试验,确保顶板结构无明显的渗漏。

4.2 陶粒混凝土找坡施工

为了便于排出种植地面的积水,确保植物的正常生长,找坡层采用LC15陶粒混凝土1%找坡层,最薄处厚30 mm。

在每个方格内,同时根据每个排水区域内的雨水斗位置计算反梁周边找坡层的厚度并弹线。根据反梁周边弹线拉麻线做灰饼,采用水泥砂浆制作,大小50 mm×50 mm,间距根据方格大小确定并不大于2 m×2 m,灰饼做好后进行复核,复核合格达到强度后进行陶粒混凝土找坡层施工[10-12]

陶粒混凝土施工时采用平板振动器振实,原浆抹光,浇筑后洒水养护。陶粒混凝土强度达1.2 MPa后方可进行下道工序施工。

4.3 聚乙烯丙纶防水层施工

聚乙烯丙纶防水层施工时,需确保找坡层无杂物、无明水。铺贴前在找坡层上涂刷水泥黏结材料,铺开卷材压紧粘牢,卷材黏结采用滚刷和长300 mm、质量30 kg的铁辊各滚压1次,确保排净卷材结层间的空气。

聚乙烯丙纶防水层进行大面积铺贴应平整顺直,卷材搭接部位要涂满水泥黏结材料、黏结牢靠,搭接尺寸符合规范要求。

防水施工前,需对阴阳角进行处理,阴角抹成圆弧,阳角采用厚20 mm水泥砂浆做圆角。排水管内采用聚氨酯涂布(图3)。

图3 反梁及排水孔处节点处理示意

4.4 自黏型改性沥青防水卷材施工

为了加强卷材之间的黏结,在第1道防水卷材上抹水泥砂浆,将自黏型改性沥青防水卷材背面的隔离纸剥开撕掉粘贴于第1道防水卷材上。

该层卷材的接缝与第1道卷材相互错开,卷材铺贴方向与排水方向垂直,每段卷材用胶皮压辊压实粘牢,排净卷材下的空气,卷材的接缝部位采用密封材料封严。

4.5 改性沥青耐根穿刺防水卷材施工

改性沥青(耐根穿刺)防水卷材采用热熔法施工,施工方法与普通改性沥青防水卷材类似。第2层防水卷材与耐根穿刺防水卷材厚度不得小于3 mm,若火焰加热器加热均匀,卷材表面熔融至光亮黑色时开始黏结卷材,滚铺时排除卷材下面的空气,使2层卷材之间粘贴牢固。改性沥青耐根穿刺防水卷材铺贴应平整顺直,不扭曲。

4.6 防水保护层施工

在卷材防水层表面用压缩空气或刷子清除表面浮灰。按间距1~2 m贴点标高(贴灰饼),铺找平砂浆时,先按流水方向以间距1~2 m冲筋。

浇混凝土前,应适当洒水湿润基层表面,主要是利于基层与混凝土层的结合,但不可有积水。在湿润过的基层上分仓均匀地铺设混凝土。一个分格内混凝土应连续浇筑完成,不留施工缝。

分格内混凝土用木杠刮平,用平板振捣器振捣密实或人工木抹拍实,并用滚筒来回滚压,直至混凝土密实、表面浮浆不再沉落为止,用木抹子搓平,搓出水泥浆。混凝土稍干后,用铁抹子压实两遍成活。

混凝土保护层浇筑完成后应及时湿润养护,养护期不得少于7 d。

4.7 排水板、卵石滤水层施工

在保护层上铺贴塑料排水板时,需要在反梁处1 m×1 m×0.25 m范围内铺设卵石滤水层。塑料排水板按设计要求进行排放固定。反梁排水孔处应先设置钢丝挡水网片, 然后在周围放置卵石疏水骨料。土工织物压边不小于100 mm, 随铺随用种植介质土覆盖, 并用大杠尺刮平表面。

4.8 土工织物施工

土工织物作为排水板、卵石滤水层与种植土之间的隔离层,防水种植土进入排水板,堵塞排水孔、雨水口,影响排水效果。

在铺设之前清理排水板上部异物,然后进行试铺,裁剪最端部土工织物至合适尺寸,铺设后搭接部位进行缝合,缝线平顺,针脚均匀。缝合后进行检查,对不合要求的地方及时进行修补。

4.9 种植覆土

按设计要求的层次、厚度和压实系数进行装填, 装填不得扰动隔离过滤层, 并使种植介质层上表面基本平整且低于出地面井道等。植物的选用应符合工程所在地的气候条件,应选择适合种植的乔灌木及地被植物。

5 成品保护

屋面每层防水层施工时,施工人员需穿软底鞋;施工完成后,需加强保护,严禁无关人员来回走动;严禁在防水层上堆放物品划伤防水层;防水层施工完后,严禁开凿打洞、增加设备基础等,以防破坏防水层;排水板和土工织物施工时严禁吸烟,防止破坏成品[13,14]

6 实施效果

本工程地下室种植顶板面积较大,反梁纵横交错,施工的关键在于防水工程和雨水的排水顺畅。种植顶板的质量,须从设计、施工等多方面进行控制。同时,我们在施工过程中,还通过以下措施保证施工质量:

1)在施工之前,通过与设计、监理及多家专业防水单位进行讨论确定最终施工工艺,明确细部做法,编制专项施工方案,严格按照技术交底施工。

2)防水材料进场应该立即送相关权威机构进行复试,复试合格以后方可施工,严禁不合格材料使用在本工程中。

3)每道施工工序进行严格的质量验收,验收合格以后,方可进行下道工序施工。

通过以上措施,本工程地下室种植顶板施工质量得到保证,排水、蓄水系统良好,满足植物生长需要。同时防水效果较好,目前已使用2年,未发现渗漏现象[15]

参考文献

[1]朱国梁.种植屋面施工工法[J].建筑技术,2005(9):660-662.

[2]原有生,焦震.种植屋面施工工艺[J].山西建筑,2009(4):354-355.

[3]韩丽莉,朱志远,王月宾,等.耐根穿刺防水材料存在的问题及技术对策[J].深圳土木与建筑,2013(2):35-38.

[4]李建伟.地下停车场种植屋面施工[J].山西建筑,2011(21):85-87.

[5]翟桂庆.种植屋面铜胎基卷材联合HDPE排水板防排水施工[J].山西建筑,2014(14):102-103.

[6]石伟国,乐雨.壹号金岸工程种植顶板施工技术[J].中国建筑防水,2014(15):26-30.

[7]庄初最.浅谈地下车库种植土顶板防水技术[J].工程质量,2014(10):12-15.

[8]玄立恒,杨健瑛.哈尔滨一大型种植顶板防水设计与施工[J].中国建筑防水,2014(3):28-30.

[9]王振文,张辉.某数字电视产业园种植屋面防水技术[J].中国建筑防水,2015(7):16-19.

[10]王林.探究种植屋面设计[J].山西建筑,2015(7):200-201.

[11]石伟国,吕志鹏.某高层建筑种植屋面防水施工技术[J].中国建筑防水,2015(7):12-15.

[12]韩丽莉,单进.种植屋面设计与施工配套技术及要点解析[J].中国建筑防水,2015(3):22-26.

[13]石伟国,邵正俊.宏欣豪园种植屋面施工技术[J].中国建筑防水,2015(3):27-30.

[14]王洁.绿色种植斜屋面设计与施工[J].山西建筑,2014(17):134-135.

[15]柯思征,周昱,张昆,等.容器种植在花园式种植屋面中的应用[J].中国建筑防水,2014(7):24-26.

Construction Technology for Large Area Dense Rib Reversed Beam at Basement Roof Slab

XU Ye LI Shuxin
Hangzhou Construction Engineering Quality & Safety Supervision Head Station Hangzhou 310007

中图分类号TU756.4+4

文献标志码B

DOI10.14144/j.cnki.jzsg.2015.07.013

作者简介许 冶(1964—),男,本科,高级工程师。

通信地址:浙江省杭州市莫干山路100号耀江国际大厦B座11楼(310007)。

收稿日期2015-05-24