苏州大学音乐厅恩玲楼改造工程中加固施工技术的研究与应用

陈 赟 顾天熊 马 松 费继华

苏州中固建筑科技有限公司 苏州 215152

摘要在苏州大学音乐厅恩玲楼加固改造工程中,因原建筑结构柱的截面尺寸小于设计的植筋深度,且原结构柱内有型钢、结构空间限制等,造成常规的改造加固施工技术无法正常施工。为了避免在改造和加固时对原结构产生破坏,且满足新的设计荷载要求,通过研究与实践,总结出一套新型施工技术。在工程建设中取得了一定的社会和经济效益,同时亦为今后的加固改造设计、施工提供了依据和宝贵经验。

关键词 建筑改造 锚板植筋加固 钢套箍加固 承台和地梁加固 锚杆静压桩

1 工程概况

本工程为苏州大学独墅湖校区恩玲学生活动中心改造加固项目,加固工程建筑面积约20 000 m2(含地下室、多功能大厅、会议室等)。该建筑原设计使用功能为学生活动中心,结构主体施工完成后一直闲置,现拟将其改造为音乐演播厅使用。本工程由苏州设计研究院和江苏东南建筑工程结构设计事务所共同联手设计,在建筑结构和加固设计上形成互补,目标使本项目成为具有江苏代表性的音乐剧院建筑(图1)。

图1 工程效果图

本工程结构本身造型层次变化较多,承载构件组成形式为钢结构、钢筋混凝土结构、劲性混凝土钢结构、圆钢柱素混凝土结构等,结构形式较为复杂;因功能变更,需要对原承台、柱、梁、板等进行加固,因结构造型大多为异形,结构层次较多,承载构件存在多种组合形式,所以加固改造时难度较大,常用的加固改造施工技术无法达到设计要求;舞台上部空间不能满足现在的设计要求,为缩短工期、减少投资成本,拟对原屋面结构进行整体提升。

2 技术创新之处

1)本工程为音乐演播厅,建筑造型独特,外部多为圆弧形,内部空间布局紧凑,结构层次变化较多,施工放线比较困难,脚手架支模较为复杂;通过PKPM建模清晰地了解建筑结构和布局,便于有序地安排施工步骤;同时,也更直观地了解施工部位,便于施工前期发现问题,尽早解决难题,避免重复施工或待工,降低施工成本,缩短施工工期。

2)本建筑主要承载构件组成形式较多;劲性混凝土结构内部有型钢,当此柱上梁需加大截面加固时,增加配筋无法采用常用植筋技术施工,此工程采用柱外加钢套箍新增配筋焊接连接施工技术进行处理,避免对原结构产生破坏,也无需对原柱进行加大截面施工,有效解决了施工难题,降低施工成本,缩短工期。

3)原钢筋混凝土柱上新增梁,柱截面尺寸小于植筋深度设计值,此时采用常用植筋工艺无法满足设计要求,此工程采用锚板植筋加固施工技术进行处理,避免原柱拆除重做或是增加截面施工,此技术有效地提高了结构荷载,并延长结构使用寿命。

4)建筑功能变更后原承台荷载不能满足现在的设计要求,因此要对原结构承台和地梁进行加固,以提升承载力;承台和地梁处于楼层结构下,无法采用灌注桩和静压桩,经过与设计院沟通,此处采用增大原承台及在原结构地梁处增加承台,采用先做承台预留锚杆和桩基孔洞,承台完成后进行锚杆静压桩施工,最终承台荷载得到有效提升,承载力满足设计要求。

3 PKPM建模深化

1)加固过程中有碳纤维加固、包钢加固、粘钢加固、加大截面加固、预应力加固等,同时有改建拆除、新增等施工交叉作业,在复杂的结构空间里,合理布置施工先后顺序较为重要;施工单位在设计院的PKPM模型基础上结合现场情况进一步深化模型,经过深度了解施工现场结构现状,用PKPM软件不断更新模型,通过模型更直观地理顺现场结构和布局,能更方便、有效地安排施工顺序,完善改造、加固的先后施工过程,提高工作效率,减少脚手架、竹排片等重复使用,最大限度地提高周转材料的利用率,同时减少不必要的窝工,降低施工成本,缩短工期。

2)通过PKPM建模更容易发觉施工问题、更直观地了解施工难点,针对施工现场产生的新问题、新难点通过荷载计算结合PKPM建模进行深化,更进一步了解问题的关键点,此时比较容易找出问题解决方案,弥补设计院因对施工现场不熟悉造成的疏忽和不足。通过此方法减少了问题解决时间,加快了施工进度,同时更有效地解决了施工技术难题,保证了施工质量。

4 锚板植筋加固

本工程在原结构上新增梁时,原结构截面尺寸小于设计要求的植筋深度,此时植筋深度不足导致新增梁荷载无法满足设计要求,通过和设计院的沟通、研究,最后新增梁与原结构的连接采用锚板植筋加固施工技术,经过计算,此时新增梁满足荷载要求,并且此项技术获得了科技发明专利并形成施工工法[1-4]

1)当原结构截面尺寸小于植筋深度设计值,主筋抗拉拔承载能力达不到要求时,将原结构钻孔打穿,新增梁主筋穿过原结构并露出约3 cm,将锚板与穿过原结构的主筋塞焊,焊接后对锚板进行封边,新增梁钢筋与孔洞间隙部位注射植筋胶,锚板与原结构连接面灌注胶水,将荷载有效传递至钢筋锚板连接体上(图2)。

2)钢筋与锚板焊接前对放置锚板部位的原结构接触面进行界面处理,钢筋与锚板焊接完成后对锚板四周进行封边,并用灌注胶灌注,使锚板与原结构有效连接,并形成一个有效的受力整体(图3)。

3)完成锚板封边灌注之后,对穿洞塞焊的钢筋洞内打入植筋胶(由洞内向外逐步注满),进一步增大钢筋与原结构的连接,加大承载力。此处新增梁时对原结构产生的剪切力和负弯矩满足荷载设计要求。

图2 锚板塞焊立面示意

图3 锚板塞焊节点示意

4)在植筋前进行施工放线,画出原结构植筋部位,植筋深度不足时将原结构孔洞打穿,按要求材质及尺寸准备好钢板,对应打好的孔洞在钢板上开洞(孔洞间距≥钢筋2d,板边距离孔洞间距≥钢筋2d)。将打穿后的孔洞清理干净,并将准备好的钢筋穿入孔洞,把开好洞的钢板与钢筋进行塞焊(图4)。

5)锚板塞焊完成并冷却后在孔洞内注射植筋胶,同时对锚板四周进行封口胶封口,用灌注胶灌注,使锚板与原结构连成整体,使受力体系更加的稳固,进一步提高结构的稳定性及牢固性,最后在锚板面上涂上防锈漆,确保质量和使用寿命(图5)。

图4 锚板塞焊

图5 锚板植筋加固完成

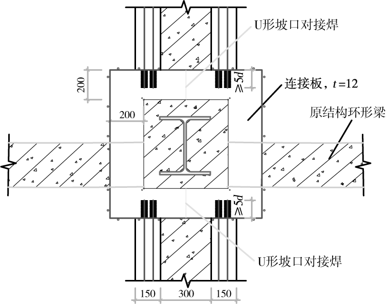
5 钢套箍焊接加固

本工程原梁进行增大截面加固时需要增加配筋,根据设计要求新增钢筋柱内植筋,因梁端柱是劲性混凝土结构,柱内有型钢,若采用常规的植筋施工技术增加梁配筋时,植筋深度将远远低于设计要求[5-8]。经过与设计院的多次探讨研究,最终确定采用柱上加焊钢套箍局部加固施工技术,经过计算此时新梁满足荷载要求,并且此项技术获得了科技发明奖。

1)当原结构梁需要增大截面加固时,梁端柱内有型钢,导致无法通过常规植筋施工增加配筋,若凿除梁柱相交部位插入钢筋则会破坏原结构,造成一系列的质量问题和安全隐患;为了避免对原结构的破坏,同时满足设计的荷载要求,此处采用在柱上焊接2个钢套箍,钢套箍位置分别与加大截面梁新增配筋的上部主筋和底部主筋处于同一水平面,然后将新增配筋焊接在钢套箍上,通过此方法使新增钢筋与柱连接(图6)。

图6 型钢柱与加大截面梁节点立面示意

2)在原结构劲性混凝土柱上进行放线,标出加大截面梁上下部新增主筋位置,在放线位置处加设2块U形钢板(钢板厚度、尺寸和材质根据设计要求确定),为了使焊缝避开受力点,要求钢板焊缝与加固梁同一方向,钢板与钢板之间进行坡口焊接,使钢板缝隙满焊,以保证钢板连接质量(图7)。

图7 钢套箍与新增钢筋焊接

3)当梁上部新增配筋与原梁主筋处于同一水平面时,将靠近柱边的原梁上部混凝土凿除至主筋下方,使梁的上排主筋下方可穿过钢套箍,将钢套箍穿过主筋下方后抱柱焊接,套箍焊接完成后,将新增钢筋焊接于钢套箍上。若柱边有墙时,将墙掏洞,使钢套箍穿洞焊接,最后与梁一同浇筑(图8)。

4)加大截面梁新增配筋绑扎完成后,将新增主筋焊接于钢套箍上,焊缝尺寸及质量满足要求(此处满足5d双面焊);同时将上下钢套箍用拉钩焊接,使上下钢套箍形成一个整体(图9)。

图8 墙开洞穿钢套箍施工

图9 剖面1-1示意

5)钢套箍上下连接拉钩焊接完成后在拉钩外侧套上箍筋,当有梁阻碍箍筋连接时在梁上钻孔,将箍筋穿洞闭合绑扎或焊接,使加固梁与柱更有效地连接,形成完整的受力体系(图10)。

图10 剖面3-3示意

6)在钢筋绑扎、焊接完成后进行支模,然后浇筑灌浆料,将梁增大截面部位、柱钢套部位、开洞开槽部位一同灌浆浇筑(图11)。

6 承台、地梁加固——锚杆静压桩

图11 梁加大截面加固完成

本工程原有结构已建成,因功能的变更,上部结构荷载要求增加,原承台及地梁无法满足变更后的建筑荷载要求。部分要加固的承台和地梁位于室内和室外坡道下方,高度无法满足桩基机器的操作高度,且无法进行灌注桩施工。在不破坏已有建筑的前提下,为满足新的结构荷载要求,并对原桩基承台、地梁进行荷载提升,需要对承台进行加固,给设计和施工提出了更高的要求,经综合考虑,最后决定采用预制承台后进行锚杆静压桩施工。

1)在地板处施工放线,找出原结构承台和地梁,清除周边土方,沿着承台、地梁四周对底板进行无损切割(避免破坏原承台、地梁),切割后将四周一定范围内板面凿除(凿除部分为预留锚杆静压桩及新增承台),凿除后挖出承台基坑。

2)原承台、地梁四周预制承台开挖完成后砌砖台模,浇筑好垫层,在原承台和地梁上植抗剪筋,新增承台位于原地梁底部,在承台中新增地梁,将原有地梁连接起来,扩大原承台和地梁的受力面积,新增承台钢筋绑扎时制模预留静压桩孔,并焊接好预留锚杆(图12)。

图12 原承台、地梁植抗剪筋

3)新增承台钢筋绑扎完成后进行制模、混凝土浇筑,浇筑完成并待混凝土达到一定强度后进行锚杆静压桩施工。

7 施工要点

1)加固改造工程中新增梁、板及加大截面增加配筋时都要进行钢筋绑扎,此类工程钢筋施工常常会受到周边原有结构阻碍,造成一定的施工难度;钢筋要根据现场实际尺寸进行下料,结合现场环境选择钢筋的搭接方式(冷绑、机械连接、焊接)便于施工,同时确保钢筋绑扎质量。

2)钢筋、钢板及预埋件焊接时确保焊接质量,严禁虚焊、漏焊、少焊,当焊接件与胶水(植筋胶、灌注胶)有连接时,应先焊后注胶,避免胶水碳化。

3)胶水植入时确保孔洞或缝隙内注射饱满,并对完成后的构件进行保护至胶水达到一定强度,杜绝胶水达到强度前遭到晃动、挤压或撞击等破坏;注射胶水时对周边其他构件进行保护,防止胶水渗漏污染周边构件。

4)新增结构与原结构搭接处要进行凿毛处理,使新老面有效结合,加大截面施工的原结构面也要进行凿毛处理,并植入拉钩,增大灌浆料与原结构的整体受力。

5)在进行构件制模时要对脚手架的搭设质量进行检查,严禁脚手架胡乱支撑在周边构件上;因灌浆料较为稀薄,对模板缝隙要求较高,制模时使模板与原结构贴紧,模板间无较大缝隙,浇筑时要时刻观察模板缝隙,如有漏浆及时进行封堵。

6)焊接件、植筋等要做相应检测,确保施工质量,对隐蔽工程施工做好隐蔽验收。

8 结语

本工程虽然是学校的音乐演播厅,但其结构布局较为繁琐,声学要求极高。建筑结构形态上多为非常规结构造型、层次感突出,多处梁、板为异形结构,且承载构件为多种材质组合而成,因此在加固设计及施工中困难重重。

本工程在加固改造行业中具有很大代表性和参考价值,常规的碳纤维加固、粘钢加固、包钢加固、增大截面加固等全部包含,其中还有因现场结构造成常规加固技术无法应用,利用PKPM建模深化,并经过研究和实践创造出锚板植筋加固、钢套箍加固、预制承台后压桩加固等很多非常规加固施工技术,此技术获得多项专利和工法。

参考文献

[1]曹晖,雍彪,华建民,等.钢套箍钢筋混凝土梁柱节点低周反复加载试验研究[J].振动与冲击,2014(19):123-128.

[2]王天稳,章国成.钢筋混凝土柱钢板套箍加固试验研究[J].建筑技术开发,2000(5):21-22.

[3]陈强,王蒸,孟阳君.钢筒套箍内灌浆加固立柱试验研究[J].森林工程,2013(2):86-89.

[4]黄泳华.加大截面法加固高层建筑框架梁柱施工探讨[J].科学与财富,2011(4):215.

[5]冯杨杰,苏有文.加大截面法及粘结型钢法加固梁的技术经济分析[J].四川建筑,2010(2):141-142.

[6]李懿辉.梁截面加大法在加固工程中的应用[J].广东土木与建筑,2008(1):63-64.

[7]魏子敬,刘光明.改扩建工程楼基础加固锚杆静压桩施工探讨[J].科技与企业,2014(15):215.

[8]尚晓飞,张立.简析建筑地基加固中锚杆静压桩的运用[J].江西建材,2014(1):60-61.

Research and Application of Reinforcement Construction Technology for Concert Hall Enling Building Renovation Project in Suzhou University

CHEN Yun GU Tianxiong MA Song FEI Jihua
Suzhou Zhonggu Building Technology Co., Ltd. Suzhou 215152

中图分类号TU746.3

文献标志码B

DOI10.14144/j.cnki.jzsg.2015.07.020

作者简介陈 赟(1976—),男,硕士,高级工程师。

通信地址:江苏省苏州市相城区东桥长明路1号(215152)。

收稿日期2015-05-13