高层钢框架中心提升式附着升降脚手架应用技术

厉天数1,2

1. 同济大学土木工程学院 上海 200092;2. 浙江城建建设集团有限公司 杭州 310007

摘要高层钢框架非压型钢板组合楼盖结构不允许在钢框梁上开孔,故无法采用穿墙螺杆固定中心提升式附着升降脚手架体。通过技术创新,研发出钢挂板附着装置和固定导向件,使架体成功运用于该类结构,保证了施工安全、降低了施工成本,并取得了较好的社会效益和经济效益。

关键词 钢框架 中心提升式 升降脚手架 附着装置 钢挂板 防倾导向件

1 工程概况

山西某世纪广场工程由A、B、C三幢楼组成,其中A楼为1幢30层五星级酒店、B楼为30层生态商务办公楼,C楼为30层高级公寓式办公楼,总建筑面积182 373 m2。其中A楼建筑高度为109.55 m,钢框架-剪力墙核心筒结构,柱子基础顶至6层采用钢骨柱,6层以上采用方钢管混凝土柱,框架梁采用工字钢梁,楼板采用非压型钢板混凝土现浇楼盖。主体外框架钢结构采用整体电动式升降脚手架(型号HFA-2001)作为施工防护,整体电动升降脚手架挂结于主体结构型钢梁上,工程已竣工验收,整体电动升降脚手架已安全拆除。

2 工艺特点

1)本工程设计了一种用于钢框架结构非压型钢板组合楼盖结构的中心提升式附着升降脚手架附着装置,通过该附着装置将中心提升式附着升降脚手架附着在结构钢梁上,经设计复核,此附着方式满足结构钢梁承载力和架体整体稳定要求。该附着装置不需采用穿过结构楼板的抱箍式,不影响现浇楼板混凝土支模、钢筋绑扎等下道工序,具有制作简单、安拆方便、安全可靠、可周转使用等特点。

2)针对钢框架非压型钢板组合楼盖结构设计了一种防倾导向件固定装置,该固定装置将防倾覆导轨的支座固定在钢梁上,不需在结构上安装预埋件和穿过楼板,不影响现浇楼板混凝土支模、钢筋绑扎等下道工序,同样具有制作简单,安拆方便、安全可靠、可周转使用等特点。

3)针对钢框架非压型钢板组合楼盖结构无处埋设连墙件预埋件的难题,设计了一种专用的连墙件,通过该连墙件将架体连接固定在钢梁上,保证了架体整体稳定性。

4)将斜拉杆与附着装置连接,架体底部设置承重托架,通过斜拉杆将承重托架与钢挂板相连接,保证了整体电动升降脚手架的稳定性。

3 工艺原理

3.1 构造组成

中心提升式附着升降脚手架由附着支承机构,架体系统,提升控制系统,防坠、导向防倾安全控制装置,同步控制系统,电动葫芦组成。架体系统由竖向框架及水平桁架组成。提升控制系统主要由吊拉杆、升降钢梁、荷载传感器组成,电动葫芦为低速环链,额定起重质量不少于7.5 t,升降速度不大于0.20 m/min,电控柜具有点控、群控、急停功能,配置过载、过流的安全保护装置,具有短路及缺相漏电保护功能。防坠安全控制装置由防坠拉杆、防坠杆、防坠落安全锁组成,采用与同步控制系统监控反馈联动[1,2]。导向防倾安全控制装置由专用导轨和滑轮组成,导向防倾安全控制装置与结构固定支座由槽钢及钢板夹片组成,中心提升式附着升降脚手架构造如图1所示。

3.2 技术原理

图1 中心提升式附着升降脚手架构造示意

1)根据结构外形,在钢框架外落地脚手架上安装承重托架、主框架、副框架、提升梁、上拉杆、电动葫芦、防坠装置、防倾覆装置、同步装置等,并搭设上部架体,将特殊附着装置——钢挂板——安装在钢框架梁的下翼缘板上,通过斜拉杆将承重托架与钢挂板相连接,并紧固上下端螺栓,以满足架体的承载力要求,通过特殊导向防倾固定装置固定在钢框架梁的下翼缘板上,从而实现架体的整体提升。

2)根据高层、超高层建筑钢框架非压型钢板组合楼盖结构特点,常规附着装置无法固定在结构钢梁上,并且钢梁不允许焊接、打孔等方式,本工程的附着装置通过弯钩单头螺杆的弯钩一端固定在结构型钢梁下翼缘上,另一端通过吊挂在结构型钢梁下翼缘上并且两端已焊接U形挂板的连接板槽钢预先设置的圆孔,用双螺母与斜拉杆、耳板牢固地固定在结构型钢梁上,悬臂钢梁与弯钩单头螺杆通过双螺母连接固定在连接板槽钢上,使悬臂钢梁牢固地固定在结构型钢梁上,然后通过斜拉杆、升降梁把架体固定在附着装置上,悬臂深支座安装附着装置方法如图2所示,斜拉杆支座安装附着装置如图3所示。

图2 悬臂梁支座安装附着装置

3)中心提升式附着升降脚手架导向防倾安全控制装置通过防倾导向件固定装置将其固定在结构钢梁上,在槽钢一端用2根短槽钢焊接成水平放置的U字形卡件卡在结构型钢梁下翼缘上,槽钢接近中间部位采用螺栓加垫片固定在结构型钢梁下翼缘上,使防倾导向件牢固地固定在结构型钢梁上(图4)。

图3 斜拉杆支座安装附着装置

图4 防倾导向件固定装置构造

4 工艺操作要点

4.1 附着支承机构及防倾覆导向件支座制作

4.1.1 附着支承机构设计、制作

附着支承机构由弯钩单头螺杆、连接板槽钢、U形挂板、结构型钢梁、双螺母、加强侧板、悬臂梁、斜拉杆、斜拉杆耳板组成。利用连接板槽钢两端与U形挂板焊接连接,U形挂板U形开口处挂在结构型钢梁下翼缘上,弯钩单头螺杆弯钩端吊挂在结构型钢梁,另一端穿过连接板槽钢预先设置的连接圆孔,连接板槽钢开口方向腹板处衬加强侧板,斜拉杆与耳板通过双螺母与弯钩单头螺杆固定在连接板槽钢上,悬臂钢梁一端焊接钢板并预先留设连接圆孔与弯钩单头螺杆通过双螺母固定在连接板槽钢上(图5),加强侧板与连接板槽钢采用焊接连接[3]

图5 附着支承机构制作大样

4.1.2 防倾覆导向件固定支座设计、制作

防倾覆导向件由第一槽钢1(6#槽钢)、第二槽钢2(6#槽钢)、第三槽钢3(6#槽钢)、第一垫片5(100 mm×100 mm×10 mm)、第二垫片6(70 mm×100 mm×20 mm)、M27螺栓及配套螺母组成,主要利用第一槽钢的尾部与第一槽钢、第二槽钢焊接成水平向U字形卡件。

4.2 架体附着支承机构的安装

1)附着支承机构通过弯钩单头螺杆的弯钩一端固定在结构型钢梁下翼缘上,另一端通过吊挂在结构型钢梁下翼缘上并且两端已焊接U形挂板的连接板槽钢预先设置的连接圆孔,用双螺母与斜拉杆与耳板牢固地固定在结构型钢梁上,同样,悬臂钢梁与弯钩单头螺杆通过双螺母连接固定在连接板槽钢上,使悬臂钢梁牢固地固定在结构型钢梁上,使附着升降脚手架拉结件固定在主体钢梁下翼缘板上,依靠钢梁来承受架体提升的竖向荷载和水平荷载(图6)。

图6 附着支承机构

2)提升机构由提升梁(8槽钢对焊而成)、拉杆(M27长螺栓,另一端焊接吊耳)、穿墙螺栓(M27)、承重葫芦等组成,根据结构情况,各提升设备附着点均固定在主体钢梁下翼缘板上,螺杆安装垂直度偏差控制在2%以内,螺帽不少于2个。

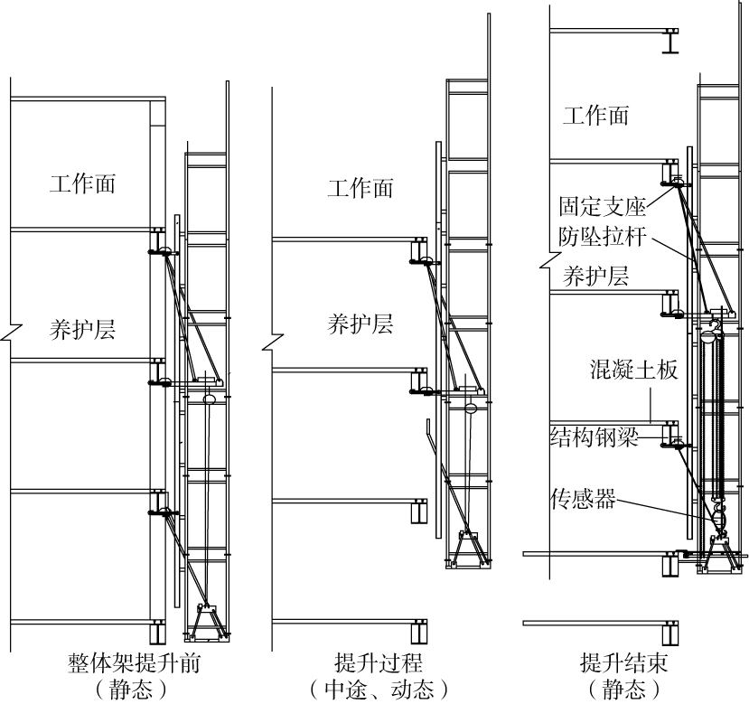
4.3 电动升降脚手架提升

电动升降脚手架提升作业的升降动态见图7。

图7 升降动态

1)提升号令必须明确统一,听到口令后,立即按动“上升”按钮。

2)各单元操作架负责人密切注意电动葫芦运转、提升速度及承重托架与链条拉接情况。

3)升降过程中,若出现异常情况,必须立即停止升降进行检查,彻底查明原因、消除故障后方能继续升降。每一次异常情况均应作详细的书面记录。

4)升降作业时间需选在下班时间进行作业。

4.4 电动升降脚手架提升后加固工作

将承重托架的2根下拉杆与建筑物连接,安装好临时拉结,并将架体底部防护到位。松开电动葫芦链条,松动并脱开上部承重支架的斜拉杆及上部承重支架上的螺栓,用手拉葫芦将整套提升设备升至下次提升所需位置[4]。整体脚手架交付施工使用时,必须安装临时连墙件,连墙件由弯钩单头螺杆、拉结挂板、U形挂板、结构型钢梁、双螺母、垫片、钢管连墙件、钢管扣件、外脚手架内立杆组成,主要利用拉结挂板设置拉结孔,拉结挂板一端与U形挂板焊接连接,U形挂板在U形开口处挂在结构型钢梁下翼缘上,弯钩单头螺杆弯钩端吊挂在结构型钢梁,另一端穿过拉结挂板预先设置的拉结孔,弯钩单头螺杆穿过拉结孔后再伸入作为连墙杆φ48.3 mm×3.6 mm钢管,钢管与拉结挂板顶紧,并与外脚手架内立杆通过钢管扣件连接,钢管外侧端部用钢板垫片与弯钩单头螺杆采用双螺母进行紧固(图8)。

图8 临时拉结

5 实施效果

中心提升式附着升降脚手架通过特殊附着装置附着于结构钢梁上,满足了附着架自身质量、架体承载力及稳定性要求,有效地解决了高层建筑钢框架非压型钢板组合楼盖结构施工的安全围护问题,具有节约钢材、节约工期、节约成本等优点[5]

该脚手架被广泛应用于高层及超高层建筑建筑钢框架非压型钢板组合楼盖结构施工中,社会效益显著;与悬挑脚手架成本相比节省费用27.9万元,经济效益明显。特殊附着装置由工厂加工制作,并可以多次周转使用,符合绿色节能、环保要求。

参考文献

[1]张伟峰.南京紫峰大厦钢结构工程整体升降脚手架施工技术[J].建筑施工,2010(8):813-814.

[2]杨玉萍,齐明,王鑫,等.液压爬架在超高层钢结构工程中的应用[J].建筑技术,2005(8):608-610.

[3]吴驰飞.建筑工程附着升降脚手架施工技术性能研究[J].江西建材,2015(2):51.

[4]金明,彭双庚,王璐.关于附着式升降脚手架防坠落装置的几点思考[J].建筑安全,2015(3):25-29.

[5]戴海涛.超高层建筑附着升降脚手架施工技术性能研究[J].中国高新技术企业,2014(29):89-90.

Applied Technology for Central Attached Lifting Scaffold in High-Rise Steel Frame

LI Tianshu1,2
1.School of Civil Engineering, Tongji University Shanghai 200092;2.Zhejiang Chengjian Construction Gruop Co., Ltd. Hangzhou 310007

中图分类号TU755.2

文献标志码B

DOI10.14144/j.cnki.jzsg.2015.07.024

作者简介厉天数(1979—),男,本科,高级工程师。

通信地址:浙江省杭州市天目山路7号东海创意中心20楼(310007)。

收稿日期2015-05-22