狭小场地钢结构屋盖高空滑移技术

姚 振

上海建工七建集团有限公司 上海 200050

摘要上海体育学院中国乒乓球学院乒乓球训练馆工程因施工场地狭小,在对几种施工方案进行比选后,决定对钢结构屋盖采用平台拼装、累积滑移的施工技术。实践证明,高空滑移技术不仅解决了施工场地狭小、大型机械受限制的现状,而且滑移技术经济安全,还可以与土建在不同空间层次上同时施工,且可缩短工期。

关键词 体育馆建筑 钢结构屋盖 大跨度 桁架分段拼装 滑移

0 引言

近年来,我国钢产量迅速提高,为钢结构建筑的发展提供了物质条件。其中大跨度的体育场馆通常都是采用地面拼装、高空吊装的方法进行安装。这种方法不仅简单实用,而且效率高。但是在施工场地狭小、吊装机械受限制的情况下,采用地面拼装、高空吊装的方法就难以实施。

大跨度钢结构管桁架屋盖采用平台拼装、累积滑移技术是近些年来进行大跨度钢结构施工的一种新方法,这种方法不影响土建施工,总工期短、安全性高,在施工场地狭小、施工机械受到限制的情况下更能发挥其特色,不失为解决问题的优选方法。我们在上海体育学院中国乒乓球学院乒乓球训练馆工程中运用该项技术,取得了明显的技术经济效果[1-3]

1 工程概况

中国乒乓球学院乒乓球训练馆工程位于上海体育学院校内,总建筑面积12 602 m2,为多层建筑,主体地上3层,高度为23.80 m,其中1、2层层高6.60 m,3层层高8.20 m。建筑结构形式为框架结构,屋面结构形式为钢结构。建筑东西侧局部5层,东部总高20.05 m,其中1~4层层高3.30 m,5层层高4.20 m。西部总高18.05 m,1~5层层高3.30 m。

屋面钢结构为圆管桁架形式,主要采用空间节点固定铰支座,中间7榀为倒三角钢管,端部为2榀单桁架,纵横交错形成整体,安装在主体结构的3层柱顶混凝土框架上。管桁架上弦为φ277 mm×10 mm钢管、下弦为φ299 mm×12 mm钢管、腹杆为φ152 mm×6 mm钢管,其材质均为Q345B。管桁架跨度为45 m,两端悬挑4 m,桁架高度约为2.80 m,结构下部采用双曲面抗拉滑移支座与埋件连接,来消耗钢结构的应力变形和热胀冷缩。桁架上采用铝镁锰围护系统及不锈钢天沟,四周采用厚3 mm铝板包檐。

2 施工难点

1)钢结构主桁架现场拼装工作量大,而本工程施工场地狭小,大型机械无法进场,且地面上没有地方进行钢桁架拼装。

2)乒乓球训练馆属上海市重大工程,国家队要求这个场馆能够及早投入使用,因此工期较紧。

3 钢结构施工技术

3.1 施工方案概述

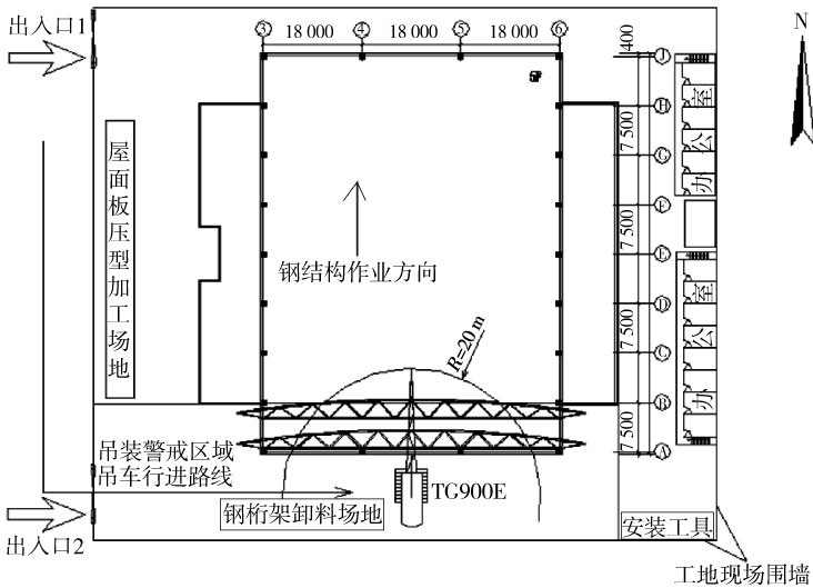
在经过多种施工方案比选后,我们决定对大跨度钢屋盖采用平台拼装、累积滑移的方式,即在主体3层楼面搭设满堂钢管脚手架,脚手架顶面标高与柱顶埋件平齐,以不影响桁架的滑移。其中在A~B轴间留出宽约9.5 m场地,作为拼装作业区域 (图1),脚手架每平方米承受力为2 kN,其余为普通作业区。安置好拼装胎架和作业平台,将工厂加工好的构件分3段运至现场(图2),采用900 kN汽车吊将其吊至作业平台上,在现场依次进行拼装,拼装好的桁架翻身起吊至柱顶埋件标高的混凝土框架梁轨道上,在A~B轴线间,安装上下弦支撑,使桁架形成稳定体后,进行累积滑移[4-6]

图1 钢结构施工现场平面布置示意

图2 钢桁架分段吊装示意

3.2 钢桁架吊装机械选用

本工程HJ1钢桁架质量为14.35 t,吊装时吊车臂长28 m,工作半径8.50 m; HJ2钢桁架质量为7.36 t,吊装时吊车臂长47 m,工作半径14.50 m;HJ1钢桁架分段质量为4.72 t,吊装时吊车臂长36 m,工作半径20 m,选用1台TG900E 900 kN汽车吊即可以满足吊装要求的各项参数。

3.3 钢桁架吊装施工

1)为了创造安全的施工环境,确保施工人员安全,在桁架处设置安全绳,具体做法为2道φ8 mm的钢丝绳,在上弦安装3根等距离高1 m的φ50 mm×5 mm的钢管,上部设置1道φ8 mm的钢丝绳作为安全绳。

2)钢管桁架每榀桁架上弦设置2个吊装点,采用绑扎吊装。

3)为了控制桁架吊装过程中的走向,在钢桁架两端捆绑溜绳,进而避免钢桁架与吊车的吊杆和周围其他设施发生碰撞。

4)每榀桁架在吊装前均设置缆风绳,借以临时固定桁架。

5)拆除钢丝绳必须在相邻2榀桁架已经按照设计图纸固定,并将2榀桁架中间的次支撑安装和调整完毕后方可进行。

3.4 单榀钢桁架现场拼装

本工程主体3层单跨53 m,桁架最高处2.80 m,在工厂里加工后由于超长,无法进行运输。因此在出厂前将每榀桁架分成3段,拟到现场进行二次拼装。但由于施工场地狭小,无法在地面上进行二次整体拼装后再用吊车吊装到设计图纸的位置,因此只能在高空操作平台上搭设拼装胎架,即先利用汽车吊将分段钢桁架吊至高空拼装胎架上,然后再将每个钢桁架控制点位置及标高调整至规范规定的误差范围内,接着用枕木、千斤顶、倒链将分段钢桁架固定在胎架上,进行钢桁架的整体调整,在满足钢桁架拼装节点、水平偏差、垂直偏差、标高等设计及规范要求后,最后进行焊接。

3.5 整体钢桁架安装流程

1)在柱顶混凝土框架梁的3轴线及6轴线上,分别布置安装2根滑移轨道。

2)第1榀J轴屋面钢桁架在胎架上拼装好后,使用汽车吊吊到轨道上的滑移支座上。

3)第2榀H轴屋面钢桁架在胎架上拼装好后,使用汽车吊吊到轨道上的滑移支座上。

4)安装第1榀、第2榀钢桁架支撑。

5)把安装好支撑的第1榀、第2榀桁架往北滑移7.50 m,空出位置安装第3榀G轴钢桁架。

6)第3榀钢桁架支撑安装。

7)第3榀钢桁架往北滑移7.50 m,空出位置安装第4榀F轴钢桁架。

8)按照这个安装方法将整个屋面9榀钢桁架滑移到位。

3.6 钢桁架滑移施工

3.6.1 滑移轨道安装

满堂脚手架搭设至3层柱顶预埋件标高后,开始安装滑移轨道。滑移轨道在整个高空水平滑移中起到限制桁架水平位移和滑移导向作用。本工程设置2根滑移轨道,分别位于3轴线、6轴线处。轨道上均匀薄涂1层黄油(钙基润滑油),以减小滑移阻力。滑移轨道在制作安装过程中必须精益求精,保证平整度,并要在滑轨两侧安装标识,时刻监控滑移施工[7-9]

3.6.2 滑移工艺及流程

本工程采用钢结构桁架平台拼装、累积滑移的施工方法,根据安装顺序,先将工厂加工分成3段的桁架吊至A~B轴线间的拼装胎架上,再通过钢支撑连接,将2榀钢桁架拼装成刚性体作为第1组滑移对象。通过滑轮组将拼装好的滑移单元在橡胶支座线上用JJM-10改装卷扬机进行两点滑移,将钢桁架刚性体滑移就位。同理,第2组滑移对象亦按此方法滑移就位。

3.6.3 钢桁架滑移技术措施

1)在滑移施工前首先要拉紧葫芦,分别拉紧桁架并经检查确认无误后,正式开始试滑2 m。接着仔细检查试滑对滑轨的影响,包括表面拉痕、整体偏扭等均应进行处理校正。完成以上试滑工作后,方可按试滑步骤进行正常滑移。

2)在滑移施工中,钢桁架滑移对象应采取防滑措施,在钢桁架前方应用钢丝绳拉紧,在桁架后方用钢丝绳与柱连系,每次停滑都必须固定。

3)滑移对象拼装、焊接、检测无误后,加装滑移对象的防倾支撑、止动装置,以防止倾倒,控制滑移过程中因惯性带来的影响,并布设钢丝绳、滑轮组。

4)为了确保滑移同步,在2根轨道上标注尺寸和标志线,滑移时设专人观察,同步偏差3 cm时应进行调整并及时通报。

3.6.4 钢桁架滑移安全措施

1)将钢桁架形成闭合刚体,以控制结构稳定性,并设防倾架,防止桁架横向倾倒。

2)滑移过程中派专人观察滑移轨道、滑移梁、顶推器、滚轮等工作情况,一旦发现异常即及时报告项目部。

3)滑移施工中的高空作业人员要求体检合格,才能进行高空作业,在作业时必须带好安全带,安全带应高挂低用。

4 金属屋面系统安装

钢结构主檩条安装、复测→不锈钢天沟安装→玻璃保温棉铺设→铝镁锰板安装→包边泛水板安装→铝板安装→工程收尾→钢结构屋面竣工验收

5 脚手架搭设

本工程在主体结构2层的顶板上和东西辅房的屋面上搭设脚手架,用于3层屋面钢结构拼装和安装。脚手架采用落地式扣件钢管脚手架,主体结构2层顶板部位搭设满堂脚手架,搭设高度8.60 m,东侧辅房顶搭设高度4.40 m,西侧辅房顶搭设高度5.30 m,所有脚手架操作面标高均为21.80 m。

脚手架采取单立杆,主体结构南侧9.50 m为桁架拼装区域,脚手架每平方米所受荷载为2 kN,立杆纵距1.20 m,横距1.20 m,步距不超过1.80 m,每6 m必须设置1道垂直剪刀撑,斜杆与地面夹角为45~60°之间,自下而上连续设置,搭接长度不少于40 cm,设置1道水平剪刀撑,此区域下层13.20 m楼板处的排架在钢结构施工期间禁止拆除。其余桁架安装区立杆纵距1.80 m,横距1.80 m,步距不超过1.80 m,每6 m必须设置1道垂直剪刀撑,斜杆与地面夹角为45~60°之间,自下而上连续设置,搭接长度不少于40 cm,采用φ48 mm钢管,底部垫木板。

6 结语

上海体育学院中国乒乓球学院乒乓球训练馆工程钢结构屋架采用平台拼装、累积滑移的高空滑移施工技术,主要优点如下[10,11]

1)安装与滑移均在高空中进行,不占地面作业场地,可以与其他土建工作平行或立体交叉施工,从而令总工期缩短。

2)高空滑移无需大型起重设备,成本低。

3)特别适用于场地狭小或大型起重设备无法进入的工

参考文献

[1] 冯岩.大跨度钢桁架施工方法优选与技术研究[D].西安:西安建筑科技大学,2012.

[2] 王智君,王琦,曾智宏.大跨度钢桁架吊装及脚手架施工技术[J].建筑施工,2006(10):821-823.

[3] 陈霆.大型体育馆钢结构屋盖的施工关键技术[J].山西建筑,2011(24):100-101.

[4] 张利.大跨度钢结构屋盖分块吊装施工技术[J].建筑施工,2011(6):481-483.

[5] 蒋国明,王大伟,张贵廷.深圳大运中心主体育馆钢结构屋盖吊装施工技术[J].建筑机械化,2011(S2):5-8.

[6] 李志鹏,汪仲琦,马洪春.常州市体育场游泳馆钢结构屋盖吊装施工[J].施工技术,2009(3):55-57.

[7] 沈锐,沈锋.大型高中空建筑钢结构屋盖组合吊装施工技术[J].建筑,2013(10):56-58.

[8] 张弓,李旻,张福川.大跨度钢桁架拼装技术[J].建筑技术,2010(6):497-499.

[9] 从乐.大跨度钢结构屋面采用小型起重设备安装施工工艺运用[J].中国科技博览,2015(14):118-119.

[10] 徐浩然.肇庆东站站房钢结构网架屋面施工工艺介绍[J].城市建筑,2015(2):99.

[11] 何怀旭.大跨度钢结构屋面吊装施工技术[J].福建建筑,2014(10):111-112.

Overhead Sliding Technology for Steel Structure Roof on Narrow and Small Jobsite

YAO Zhen
Shanghai Construction No.7 (Group) Co., Ltd. Shanghai 200050

Abstract: The table tennis training venue construction site in China Table Tennis College of Shanghai University of Sport is narrow. After comparing several construction schemes, the construction technologies of the platform assembly and the accumulative sliding for the steel structure roof have been used. The practice has proved that the overhead sliding technology can not only solve the problem of the narrow construction site and the limitation on the large machinery, but also can construct at the same time on different spatial levels with the civil engineering, which can shorten the construction period, thanks to its economic benefit and safety.

Keywords: gymnasium building steel structure roof long-span segmented assembly of truss sliding

中图分类号TU758.15

文献标志码:B

DOI:10.14144/j.cnki.jzsg.2015.08.016

作者简介:姚 振(1981—),男,本科,工程师。

通信地址:上海市龙吴路188号(200232)。

收稿日期:2015-06-10