直立锁边系统在R形交角金属屋面中的应用

王 绎

竹中(中国)建设工程有限公司 上海 200120

摘要:常熟东洋饮料厂房工程所采用屋面为铝镁锰合金直立缝锁边系统金属屋面,它的外立面采用R形圆弧屋面板无外挂天沟形式。通过施工前对屋面整体排版的设计、细部构造节点的深化,以及施工过程中的把控,有效保证了屋面的整体使用功能和美观性,使屋面不但能够具备整体结构性防水功能,而且具有结构简洁、轻巧、施工安全、快速、准确、经济等特点,取得了理想的效果。

关键词: 金属屋面 直立锁边 结构性防水 伸缩缝 圆弧节点 设计与施工

1 工程概况

背景工程位于江苏省苏州市常熟东南开发区,工厂主体结构为1层钢结构,采用铝镁锰合金直立锁边系统金属屋面,外墙均采用彩钢板作为围护结构。外墙立面与屋面交界处采用了圆弧角造型,使整幢建筑物具有线条感,尽显柔和之美(图1)。由于屋面与墙面分别采用了直立锁边和普通彩钢板2套系统,因此R角节点处理有一定难度。

图1 建筑效果图

2 技术难点

1)由于该厂房设计上在两面墙与屋面之间采用圆弧造型连接,为保证设计效果,屋面必须采用与墙面的材料、形状相一致的产品;另外,为保证圆弧边缘搭接处将来无漏水隐患,必须采用将屋面材料折弯,然后与墙面完成搭接的施工工艺。有了以上的基准要求后开始进行施工准备工作,但在国内的生产厂商中尚找不到符合要求的材料。

2)屋脊、山墙收边、檐口等处如果不加特别的节点处理,容易造成漏水隐患。

3)虽然工厂主体形式上只是一个单体,但由于该厂房为混凝土结构外包金属墙板围护,因此与工厂主体钢结构在屋面交汇处圆弧伸缩缝的三维处理难度极高。

3 直立缝锁边系统金属屋面的特点

1)直立缝锁边系统金属屋面具备整体性结构防水、排水功能;

2)系统采用暗扣式直立锁边的固定方式,屋面没有螺钉外露,整个屋面不但美观、整洁,而且从根本上杜绝了螺钉穿孔造成的漏水隐患;

3)具备抗风性能,这样可以增加建筑屋面的使用寿命;

4)金属面板为三维弯弧特异造型,构造简洁、轻巧,并且采用机械加工,使得板材加工更加方便、快速、准确;施工速度快,操作方便、简单;

5)直立锁边的T形铝合金固定支座仅限制屋面板在板宽方向和上下方向的移动,并不限制屋面板沿板长方向的移动,因此屋面板在温度变化时能够在固定支座上自由伸缩,消除了因热胀冷缩而产生的温度应力[1,2]

4 直立缝锁边系统金属屋面的深化设计

4.1 圆弧角金属屋面过渡节点处理

普通工业厂房基本上采用外挂天沟作为屋面的排水系统,但是本工程由于外立面的需要,本来挂天沟的屋面部分做成了R角,整个屋面排水系统成了自由排水,因此在施工中带来了很多难题。

4.1.1 使用材料的决定

根据设计要求,R角直径确认为1 200 mm。原设计屋面应该与墙面连成一体(图2),才能既确保设计效果,又能满足防水要求。也就是说,屋面的板型必须与墙面板型相配,并且R角圆弧部分必须使用与屋面同样的材质,才能保证此部分荷载及防水的要求。但国内市场上没有现成的材料,经多方查询才找到了一家能生产相类似产品的国内企业。为此,针对这种板材我们进行了专门的节点设计,以满足功能和外观需求。

图2 屋面R角连接示意

4.1.2 施工图节点的深化设计

根据以往的施工经验,不同材料在屋面平接肯定会带来漏水隐患,光靠胶体是保证不了十年乃至更多年限的防水。因此必须从构造上进行处理,将这2种材料的搭接处做成高差,以解决漏水问题。根据屋面排水截面的验算,我们把高差定在了12 cm,并按此制作了施工图节点(图3)。同时我们考虑用特殊的山墙收边来盖住这高差。

图3 屋面板施工节点示意

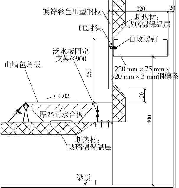
4.1.3 异型山墙收边的深化设计

所谓山墙收边,主要是连接屋面板与墙面板的包边,防止雨水从这里流进建筑物内部。考虑到本工程建筑物外立面的特殊性,并且还要处理掉屋面12 cm的高差,从而在视觉效果上达到设计的要求,故标准的收边已经满足不了要求。原因有三:其一,12 cm的屋面高差靠普通山墙包边是盖不住的,必须加高尺寸;其二,普通形状的山墙包边,不能够折成φ1 200 mm的弧度;其三,普通的山墙包角与墙面转角包边是不相干的,而R角圆弧屋面是连续的。因此基于以上三点,最后设计成凹形收边,既满足了设计上圆弧美观的要求,同时又达到了盖住高差处的施工需要(图4)。

图4 两种山墙收边的比较

4.2 屋脊、屋面开口、高低跨交界等处节点深化设计

防水是金属屋面系统根本的也是最重要的功能。屋脊处和屋面开口部、高低跨部、山墙等处泛水板是漏水的重要隐患处,因此在工程中必须对这些部分进行节点的深化设计。

4.2.1 屋脊处

在加工时先将屋面板端头高端位部分的板边向上弯起80°左右,弯起高度与直立部分等高,形成挡水板;同时在屋脊盖板位置两侧安装与金属屋面板相吻合的专用金属堵头(压制成型),金属堵头与金属屋面板之间采用4~6个螺丝固定,金属堵头与屋脊收边之间采用专用防水大铆钉固定,且在金属堵头上下均敷设防水胶泥加筒胶,这样既解决了传统的泡沫堵头易脱落的问题,又确保了该节点在任何气候情况下都能达到严密的防水功能(图5)。通过采取以上措施,使之形成双重防水结构,防止在风力作用下,雨水直接进入屋脊收边与屋面板对接缝,形成大面积渗漏。

图5 屋脊处节点深化设计示意

4.2.2 屋面开口处

金属屋面开口施工存在着3个问题:

1)作为用于屋面的建筑材料,必须考虑其长久的耐候性、抗腐蚀性;

2)屋面开口需考虑其支撑处屋面设备的强度及自身强度补强;

3)屋面开口与屋面板交界部位的防水处理。

由于屋面进行工厂一体化加工,故可以在开口的背水面底部加工出与屋面板板肋相匹配的凹槽,在安装屋面开口时,只需将该凹槽压在屋面板板肋上,再敷设防水胶后用钉子固定即可做到屋面开口背水面底部的防水;屋面开口的迎水面则采用在该位置设置分水板,使其迎水面无积水区域,分水板与开口完成防水处理,并且从屋面最高处起在迎水面的屋面部分上再盖一层泛水板,宽度与屋面开口完成面相同,防止雨水从屋面板断口及与开口间隙流入建筑物内。最后需要注意的是屋面开口应具备一定的防水高度,整个屋面开口及其附件均直接与屋面板连接固定,而不能与屋面檩条有任何连接点,以确保屋面系统在热胀冷缩过程中不会造成屋面开口处的漏水现象(图6)。

图6 屋面开口处防水处理示意

4.2.3 高低跨处

该部位处理基本和屋脊处处理相似,同样利用屋面板弯起、金属堵头、防水布、泛水板等共同构筑成双重防水效果(图7)。

4.3 与混凝土结构的伸缩缝处的深化设计

本工程既有钢结构又有混凝土结构,这就避免不了伸缩缝这一老生常谈的问题了。但是,本次施工的难度在于圆弧屋面板与混凝土结构女儿墙交会处彩色压型钢板之间如何处理才能保证不漏水,既要保证两边的圆弧屋面板各自只能固定在自己的结构一边,同时又要考虑与屋面山墙包边之间形成三维一体的连接。针对这个问题,在图纸上很难直观地反映出这三者之间的关系。因此,我们在现场做了一个节点经设计确认的实体模型,让操作工人能够通过实物模型,事先了解施工做法,从而在施工中取得了很好的效果。

图7 高低跨处的防水处理示意

5 屋面施工控制要点

1)首先要控制屋面檐口圆弧屋面板下方钢结构的标高,防止该部分屋面施工后形成倒泛水。

2)其次,对各个隐蔽部分,特别是2种防水节点实施100%验收,并且保留好影像资料。

3)再次,对于复杂的节点(例如圆弧檐口与屋面,墙面相交处伸缩缝做法,既要考虑建筑立面效果,又要符合伸缩缝原理),要结合设计图纸,通过现场实样制作,确定施工方案。

4)最后是圆弧屋面板与墙面板的连接施工,由于外立面要求两者材料、形状必须相吻合,安装前必须进行排版,墙面板必须先放线安装,消除累积误差[3,4]

6 实施效果检查

通过前期的深化设计及施工过程中的严格把控,使得该工程金属屋面施工质量到达了预期的要求,既保证了金属屋面防水、隔热、抗风、保温、降噪等使用功能,又实现了金属屋面美观、简洁、大方等外观特征,受到了业主和工业区领导的一致认可。

参考文献

[1]徐盛革.浅析金属屋面系统的应用及发展[J].安徽建筑,2013(5):96-97.

[2]邹顺星.直立锁边金属屋面系统与柔性屋面系统相结合在广州歌剧院的应用[J].城市建筑,2014(18):242-243.

[3]刘世林,盖力,徐廷波.金属屋面系统设计应注意的问题[J].中国建筑防水,2014(23):20-28.

[4]胡全成,钟俊浩.南昌国际体育中心体育场特殊造型金属屋面系统[J].中国建筑防水,2014(19):24-27,32.

Vertical Side Whipstitch System Applied to R Angle Intersected Metal Roof

WANG Yi
Takenaka (China) Construction Engineering Co., Ltd. Shanghai 200120

中图分类号:TU765

文献标志码:B

DOI:10.14144/j.cnki.jzsg.2015.09.022

作者简介:王 绎(1970—),男,本科,工程师。

通信地址:上海市浦东新区银城中路488号太平金融大厦601~602室(200120)。

收稿日期:2015-07-13