承插型盘扣式脚手架在高大模板支撑中的应用

时 炜 1,2 温晓龙 2

1. 西安建筑科技大学 西安 710054;2. 陕西建工集团总公司 西安 710003

摘要:结合具体工程,阐述了承插型盘扣式脚手架在高大模板支撑中的设计及施工技术,并对承插型盘扣式脚手架的主要特点进行了总结。工程实践证明,通过合理的方案设计、严格的材料及施工过程控制,承插型盘扣式脚手架在高大模板支撑中是安全可靠的,且能保证工程质量,加快施工进度,可供类似工程借鉴和应用。

关键词: 承插型 盘扣式脚手架 高大模板支撑 设计与施工 安全措施

1 工程概况

西安市某工程1层入口外廊、门厅、3层会议室、8层会议室和绿化休息庭等10处部位的模板支撑系统比较高大,属于超过一定规模的危险性较大的分部、分项工程范畴。其中,最大搭设高度为10.60 m,梁最大跨度为26.40 m,梁最大尺寸为500 mm×1 100 mm,最大搭设面积为601.92 m2

2 方案选择

2.1 承插型盘扣式脚手架的特点

承插型盘扣式脚手架立杆上每隔一定距离焊有圆盘,水平杆采用杆端扣接头卡入连接盘,用楔形插销连接,立杆的接长采用套管承插连接。一般与可调底座、可调托撑等多种辅助件配套使用。其主要特点如下:

1)安全可靠。立杆上的圆盘与水平杆上的接头楔紧,接头传力可靠;立杆与立杆之间承插后同轴心传力;受水平杆定尺长度的控制,立杆的垂直度得到了保证,使架体受力以轴心受压为主;架体的每个单元近似格构柱,因而承载力高,不易发生失稳。

2)搭拆快,易管理。水平杆与立杆连接,无需特殊工具,只用1把铁锤敲击楔形插销即可完成搭设与拆除,工效提高2~3倍,真正实现省工、省力、省时。全部杆件均系列化、标准化,便于仓储、运输和堆放,既保证了现场文明施工,又避免了材料的丢失、损坏。

3)节省材料,绿色环保。由于采用低合金结构钢为主要材料,在经过表面热浸镀锌处理后,与其他支撑体系相比,在同等荷载情况下,材料可以节省1/3左右,产品寿命可达15 a,节省相应的运输费、搭拆人工费、管理费、材料损耗等费用。

2.2 施工难点

1)支撑多、荷载大。工程中的10处部位需要进行高大模板支撑设计与施工,支撑部位多,架体周转次数也多,并且存在上下层为连续高大模板支撑的区域,施工荷载大。为形成局部的高大空间,设计中采用型钢柱和型钢斜梁与混凝土梁共同组成桁架。然而,型钢桁架施工对高大模板支撑附加的荷载较大,故需要安全可靠、承载力高的架体。

2)工程工期紧。要在4个月内完成本工程的主体结构施工,期间还经历冬期施工和春节假期,有效的施工时间有限,因此,需要搭拆快、易管理的架体。

3)工程要求高。本工程为创省级文明工地、新技术应用示范工程和绿色施工示范工程,故需选择节省材料、绿色环保的架体。

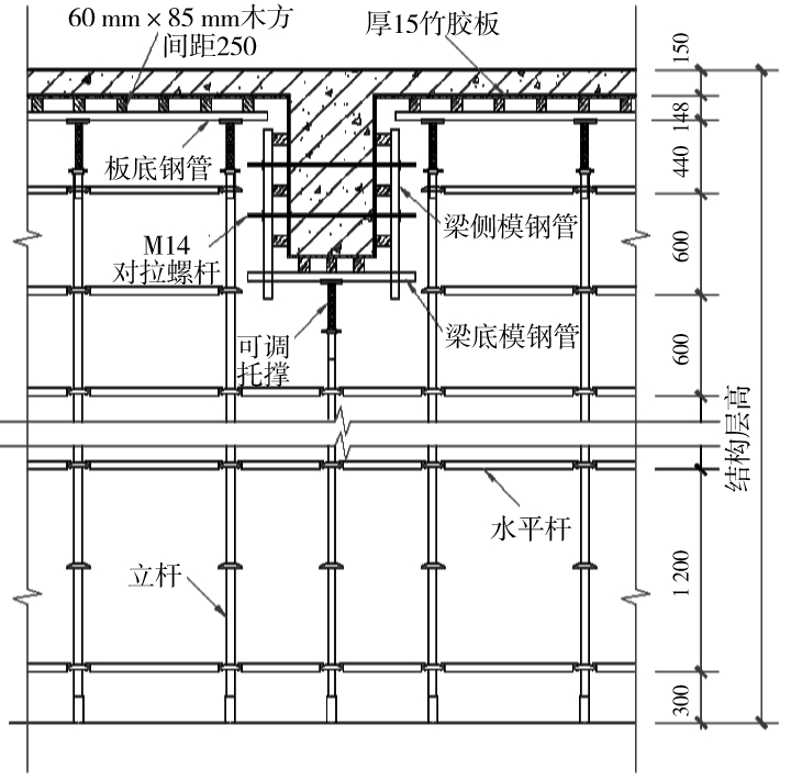
因承插型盘扣式脚手架能够完全满足本工程的上述施工需要,故拟采用承插型盘扣式脚手架进行模板支撑系统搭设。模板材料选用厚15 mm的竹胶板,背楞为60 mm×85 mm的木方,采用M14对拉螺杆,混凝土浇筑使用布料机进行[1]

3 施工工艺

3.1 架体基础

本工程的支撑系统架体基础均为钢筋混凝土梁板,强度等级为C40(1层入口外廊、1层门厅和3层会议室)和C35(8层会议室和绿化休息庭),强度较高,无需再做特殊处理,但须保留其下层的满堂支撑系统作为加强措施。

3.2 搭设与拆除工艺

3.2.1 搭设工艺

支架立杆搭设位置按专项施工方案放线确定。支架搭设根据立杆位置放置底座,并准确放置在定位线上保持水平,按先立杆、后水平杆、再剪刀撑的顺序进行搭设,形成基本架体单元,以此扩展搭设成整体支架体系。水平杆扣接头与连接盘的插销使用质量0.50 kg以上铁锤击紧至规定深度。每搭完一步支架后,及时校正水平杆步距、立杆的纵横距、立杆的垂直偏差和水平杆的水平偏差。立杆的垂直偏差不应大于模板支架总高度的1/500,且不得大于50 mm。搭设完成的支撑系统须与周边已完成的结构构件进行可靠拉结,梁下的支撑必须随架体进行同步搭设。

3.2.2 拆除工艺

根据跨度,本工程中的高大模板支撑架体须待梁、板混凝土强度等级达到100%后方可拆除。拆除作业应按先搭后拆、后搭先拆的原则,从顶层开始,逐层向下进行,严禁上下同时拆除,严禁抛掷。分段、分立面拆除时,应确定分界处的技术处理措施,并应保证分段后架体的稳定。

3.3 构造要求

3.3.1 立杆

板下立杆纵横向间距均为900 mm,梁下立杆纵距(沿梁轴线方向)按900 mm排布、横距按600 mm排布,支撑平面如图1所示。跨度超过4 m的梁底按0.20%坡度进行起拱,高度用可调托撑来控制。

3.3.2 水平杆

水平杆(使用长度为900 mm和600 mm的杆件)步距按1.20 m进行排布,不足模数的位置使用钢管扣件搭设。最顶层的水平杆步距为600 mm。

图1 支撑平面示意

3.3.3 剪刀撑

剪刀撑采用钢管扣件搭设,在架体四周及梁下设置垂直剪刀撑,垂直剪刀撑沿支架全高满布设置。垂直剪刀撑斜杆与地面的夹角在60°左右,剪刀撑斜杆的接长采用搭接,搭接长度不小于500 mm,并采用不少于2个旋转扣件进行固定,端部扣件盖板的边缘至杆端距离不应小于100 mm。剪刀撑斜杆用旋转扣件固定在与之相交的横向水平杆的伸出端或立杆上,旋转扣件中心线至主节点的距离不应大于150 mm。在支撑系统中部设置1道水平剪刀撑以加强系统稳定性。

3.3.4 可调托撑

可调托撑伸出顶层水平杆的悬臂长度严禁超过650 mm,且丝杆外露长度不应大于300 mm,插入立杆长度不得少于150 mm,如图2所示。

图2 可调托撑顶层设置

3.3.5 脚手板

在架体高度的中间位置满铺1层脚手板,脚手板与水平杆及相邻的脚手板绑扎牢固。在脚手板端头加设水平杆,与脚手板端头距离控制在150 mm内,以杜绝探头板的出现。

3.3.6 系统拉结

因混凝土分段施工,支撑系统可与周边已浇筑完成的混凝土柱进行拉结,以增强系统的整体稳定性(图3)。模板支撑系统为独立系统,禁止与塔吊、施工电梯等设备架体的机身及其附着装置相连,禁止与脚手架、卸料平台等架体相连。

3.3.7 支撑设计示例以3层会议室为例,其高大模板支撑设计见图4~图6。

图3 支撑系统拉结大样示意

图4 支撑设计平面示意

图5 1-1剖面示意

图6 支撑设计大样示意

4 施工安全措施

4.1 支架搭设安全措施

1)支架搭设作业人员应正确佩戴安全帽、安全带和防滑鞋。安全帽和安全带应定期检查,严禁使用不合格产品。

2)高支模区域内应设安全警戒线,不得上下交叉作业。

3)支模过程中如遇中途停歇,应将已就位的支架连接稳固,不得浮搁或悬空。

4)当有六级以上强风、浓雾、雨或雪天气时应停止支架的搭设和拆除作业。雨、雪后上架作业应做好防滑措施并应扫除积雪。

5)夜间不宜进行架体的搭设和拆除作业。

4.2 支撑使用安全措施

1)支撑系统上的材料应均匀堆放,放平、放稳。

2)支撑系统在使用期间,立杆底部不得松动悬空,也不得用作缆风绳的拉结。

3)在支架上进行电气焊作业时,必须有防火措施和专人监护。

4)混凝土施工时按先浇筑柱混凝土,后浇筑梁、板混凝土的顺序进行。梁、板混凝土浇筑施工采用从跨中向两端对称进行且分层浇筑,每层厚度不得大于400 mm。浇筑过程须确保支撑系统受力均匀,避免引起失稳。

5)型钢桁架杆件在吊装和安装过程中要轻、要稳,不能对架体产生冲击荷载。

4.3 支撑拆除安全措施

1)支撑系统拆除前,技术负责人、总监理工程师须检查混凝土同条件试件强度报告,达到拆模强度后方可拆除,并履行拆模审批签字制度。

2)拆除作业时,地面设围栏和警戒标志,并派专人看守,严禁非操作人员入内。

3)支撑系统拆除时,必须自上而下逐层进行,分段拆除的高度不应大于2层楼面高度。

4)拆除的支架构件应安全地传递至地面,严禁抛掷,并按规格分类堆放。

5)拆除中途停歇时,应将已松扣或拆松的支架拆下运走,防止构件坠落或作业人员扶空坠落伤人[2,3]

5 结语

目前,本工程的主体结构已按原定计划施工完毕,经后期对完成的梁、板面标高进行测量,最大沉降量为5 mm,满足规范要求。经测算,本工程中使用的承插型盘扣式脚手架比钢管扣件式脚手架每平方米节约造价25%,节约工期35 d。实践证明,在高大模板支撑工程中,承插型盘扣式脚手架能够更好地保证施工安全、质量和进度,且能节约成本,顺应了建筑业向标准化、装配化方向发展的大趋势,值得大力推广。

参考文献

[1]住房和城乡建设部工程质量安全监管司.建筑业10项新技术(2010)[M].北京:中国建筑工业出版社,2010.

[2]汪腊春.承插型盘扣式脚手架结构安全研究[J].安徽水利水电职业技术学院学报,2013(4):11-13.

[3]王玉国.承插型盘扣式脚手架在某地铁车站施工中的应用[J].铁道建筑技术,2014(6):148-151,156.

Application of Bell-Spigot Bearing-Insertion Scaffold to High and Large Formwork Support System

SHI Wei1,2 WEN Xiaolong2
1. Xi’an University of Architecture and Technology Xi’an 710054;2. Shaanxi Construction Engineering Group Corporation Xi’an 710003

Abstract: Combined with the specif i c engineering project, this paper explains the design and the construction technology of the bell-spigot bearing-insertion scaffold for large formwork support system and summarizes the main features as well. The engineering practice has proved that such scaffold is safe and reliable, and can ensure the construction quality and accelerate the construction progress through reasonable project design and strict control of the materials and the construction process, which can be referred and applied to the similar projects.

Keywords: bearing-insertion form bell-spigot type scaffold high and large formwork support system design and construction safety precautions

中图分类号:TU755.2

文献标志码:B

DOI:10.14144/j.cnki.jzsg.2015.09.025

作者简介:时 炜(1969—),男,本科,教授级高工。

通信地址:陕西省西安市北大街199号(710003)。

收稿日期:2015-04-25